Prodaja
Изнајмљивање
Блог
O nama
+ Додај понуду
Мени
Popis ponuda
7
7
7
705 560 PLN
(15 679 PLN / м²)
Продажа
2
1
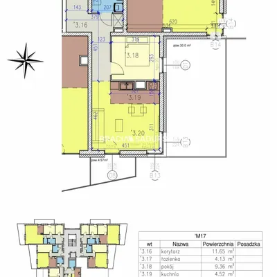
45 м²
Reduta, Kraków
Прикажи на мапи
Додај у омиљене
Делити
спаваћа соба
0
površina
45 м²
kupatila
1
лифт
Не
parking
Не
држава
podrum
Не
тераса
Не
Opis
Преведи на engleski
Marzysz, aby mieszkać w cichej i spokojnej okolicy nie rezygnując jednocześnie z uroków miasta? Jesteś w dobrym miejscu! Przedstawiamy inwestycję w k...
Prikaži ceo opis
Parametri
Parametri
Власништво:
Lično
Тип градње:
Ostalo
Тип грејања:
Ostalo
Nameštaj:
Ostalo
Starost ponude:
809 dana
Ažurirano:
807 dana
Пријава огласа
Lokacija
Reduta, Kraków
Lokacija je približna, ne znamo tačnu adresu.
Zatražiti tačnu adresu
Прегледај карту
Комунална инфраструктура
BRACIA SADURSCY
Malwina Filas
Прикажи Е-маил
Прикажи телефон
Контактовати продавац
BRACIA SADURSCY
Malwina Filas
Прикажи Е-маил
Прикажи телефон
Контактовати продавац
Slične ponude
|
Сличне понуде у иностранству
|
Sale
Apartments
Пољска