Prodaja
Изнајмљивање
Блог
O nama
+ Додај понуду
Мени
Popis ponuda
318 000 €
(2 718 € / м²)
Продажа
1
1
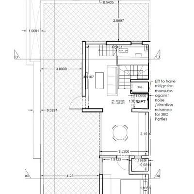
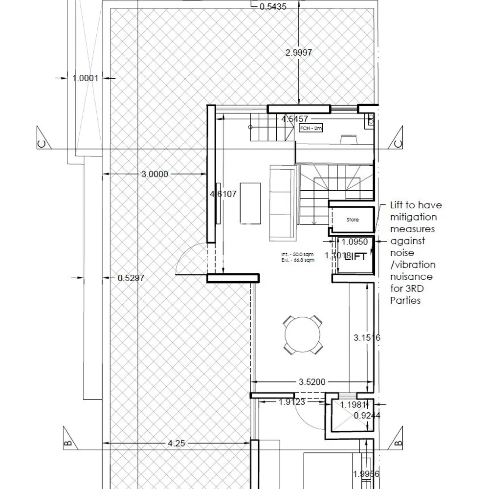
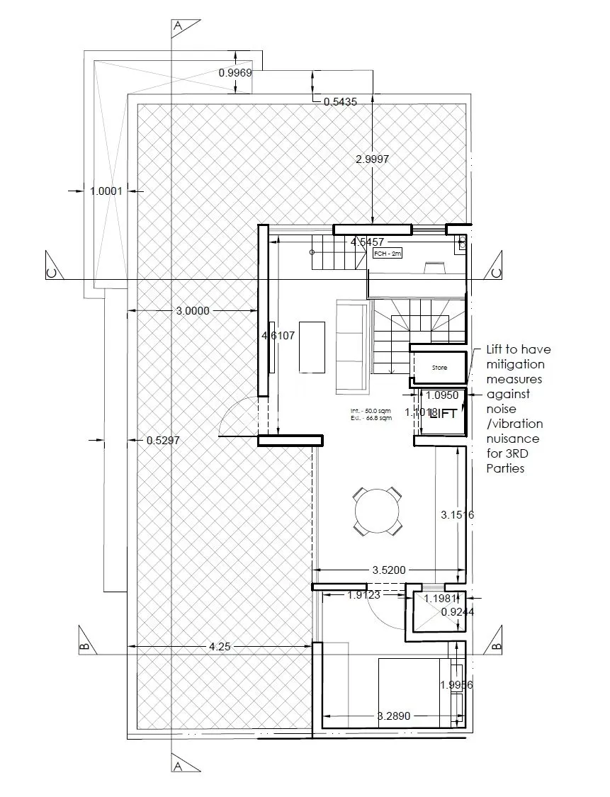
117 м²
Gzira, East Malta
Прикажи на мапи
Додај у омиљене
Делити
спаваћа соба
1
površina
117 м²
kupatila
1
лифт
Не
parking
Не
држава
Ostalo
podrum
Не
тераса
Да
Opis
Преведи на engleski
Fully finished including bathrooms and doors is this one bedroom penthouse located in Gzira. The property is estimated to be finished early 2024. Idea...
Prikaži ceo opis
Parametri
Parametri
Власништво:
Ostalo
Стање:
Ostalo
Тип градње:
Ostalo
Nameštaj:
Ostalo
Starost ponude:
668 dana
Ažurirano:
626 dana
Пријава огласа
Lokacija
Gzira, East Malta
Lokacija je približna, ne znamo tačnu adresu.
Zatražiti tačnu adresu
Прегледај карту
Комунална инфраструктура
Sara Grech Limited
Sara, Sara Grech Ltd LEK Business Centre Triq L’Esportaturi CBD Zone 2 Birkirkara, CBD 2040
Прикажи Е-маил
Прикажи телефон
Контактовати продавац
Sara Grech Limited
Sara, Sara Grech Ltd LEK Business Centre Triq L’Esportaturi CBD Zone 2 Birkirkara, CBD 2040
Прикажи Е-маил
Прикажи телефон
Контактовати продавац
Slične ponude
|
Сличне понуде у иностранству
|
Sale
Apartments
Малта