Verkoop
Verhuur
Blog
Over ons
+ Eigenschap toevoegen
Menu
Lijst van aanbiedingen
16
16
16
166 400 €
(3 140 € / m²)
Verkoop
2
1
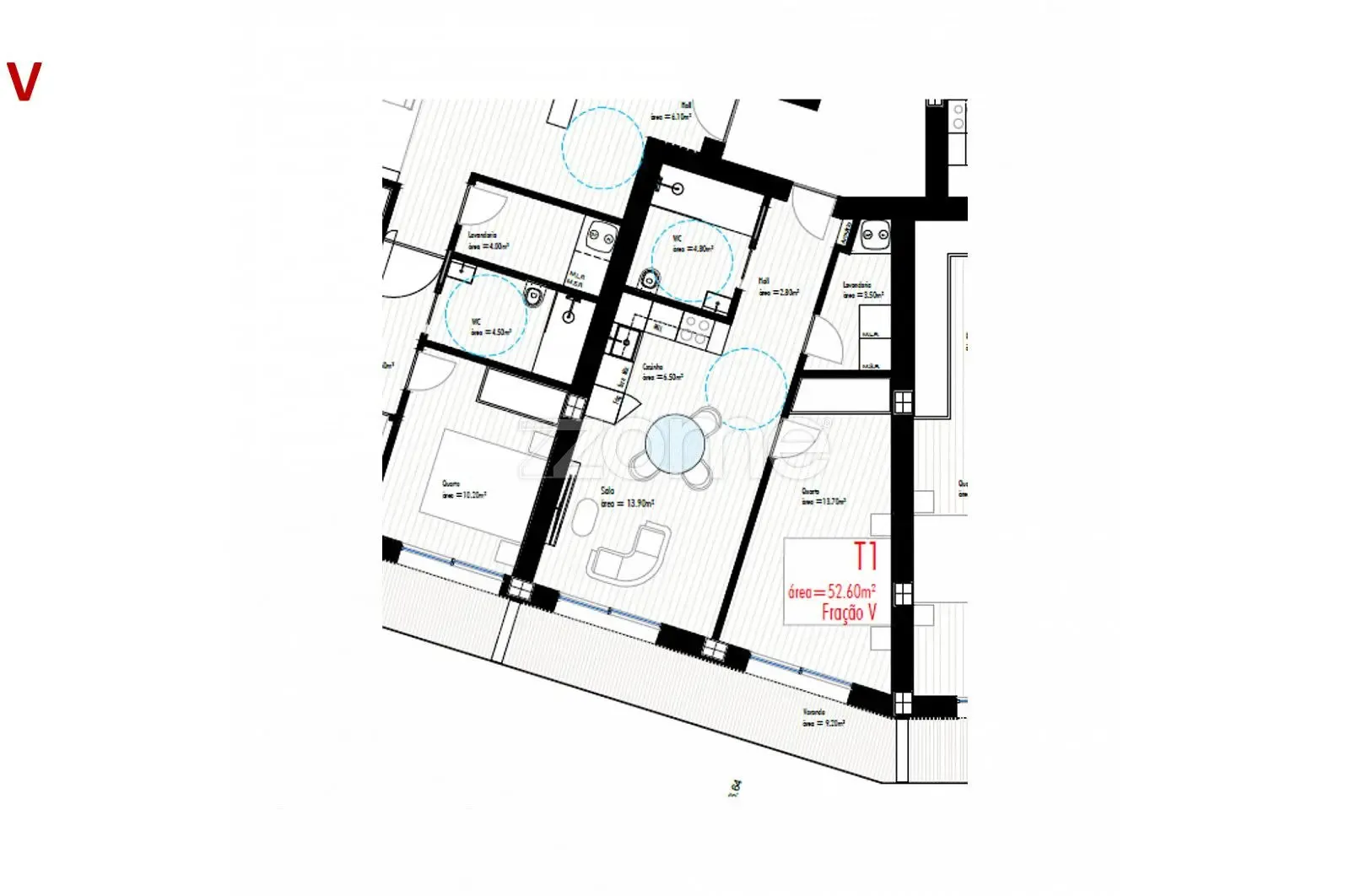
53 m²
Paços de Ferreira
Op kaart weergeven
Toevoegen aan favorieten
Delen
slaapkamer
1
oppervlakte
53 m²
badkamers
1
lift
Nee
parkeren
Nee
staat
Overige
kelder
Nee
terras
Nee
Beschrijving
Vertalen naar Engels
Identificação do imóvel: ZMPT580186
Um empreendimento moderno, luminoso e pensado ao detalhe para o seu conforto. O Bellevue Residences nasce para re...
Toon volledige beschrijving
Parameters
Parameters
Eigendom:
Overige
Staat:
Overige
Gebouwtype:
Andere
Type verwarming:
Overige
Meubilair:
Andere
Leeftijd van aanbieding:
107 dagen
Bijgewerkt:
1 dagen
Advertentie melden
Locatie
Paços de Ferreira
De locatie is voorlopig, het exacte adres is onbekend.
Exact adres aanvragen
Kaart vergroten
Publieke voorzieningen
ZOME Porto - CEC
Telefoon weergeven
Contacteer verkoper
ZOME Porto - CEC
Telefoon weergeven
Contacteer verkoper
Vergelijkbare aanbiedingen
|
Vergelijkbare in het buitenland
|
Sale
Apartments
Portugal