Verkoop
Huur
Blog
Over ons
+ Eigendom toevoegen
Menu
Lijst met aanbiedingen
15
15
15
335 000 €
(6 091 € / m²)
Verkoop
2
1
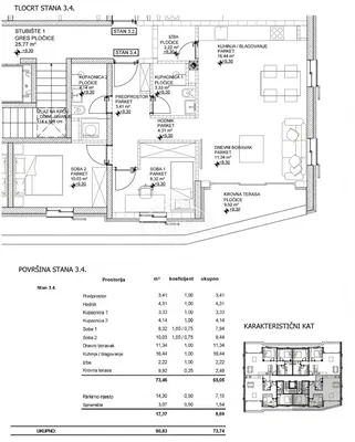
55 m²
Grad Cres
Toon op de kaart
Toevoegen aan favorieten
Deel
slaapkamer
2
vlak
55 m²
badkamers
1
tillen
Ja
parkeren
Ja
staat
Ander
kelder
Nee
terras
Nee
Beschrijving
Vertalen naar Engels
U ponudi je jedina novogradnja u samom starom dijelu grada Cresa, smještena na svega 50 metara od mora, što je iznimna rijetkost koja se na tržištu po...
Toon volledige beschrijving
Parameters
Uitrusting en functies
Loggia
Airconditioning
Garage
Tillen
Eigen parkeergelegenheid
internet
Tuinen
Parameters
Eigendom:
Ander
Staat:
Ander
gebouwtype:
Ander
Verwarmingstype:
Ander
Apparatuur:
Ander
Leeftijd van het aanbod:
55dagen
Bijgewerkt:
55dagen
Rapporteer advertentie
Plaatsen
Grad Cres
De locatie is bij benadering, we kennen het exacte adres niet.
Geef het exacte adres op.
Kaart vergroten
Openbare voorzieningen
Codex nekretnine
Gordana Grgat
E-mailadres weergeven
Toon telefoon
Neem contact op met de verkoper
Codex nekretnine
Gordana Grgat
E-mailadres weergeven
Toon telefoon
Neem contact op met de verkoper
Vergelijkbare advertenties
Vergelijkbaar in het buitenland
Verkoop
Appartementen
Kroatië