Verkoop
Verhuur
Blog
Over ons
+ Eigenschap toevoegen
Menu
Lijst van aanbiedingen
6
6
6
469 000 €
(5 518 € / m²)
Verkoop
filters.disposition_4
1
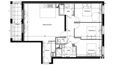
85 m²
CLAMART
Op kaart weergeven
Toevoegen aan favorieten
Delen
slaapkamer
4
oppervlakte
85 m²
badkamers
1
lift
Ja
parkeren
Nee
staat
Overige
kelder
Nee
terras
Nee
Beschrijving
Vertalen naar Engels
iad France - Sarah Rozière (06 99 86 19 42) vous propose : Appartement T4 avec balcon à Clamart.Située avenue Réaumur, au cOEur d’un environnement ver...
Toon volledige beschrijving
Parameters
Uitrusting & eigenschappen
Lift
Parameters
Eigendom:
Overige
Staat:
Overige
Gebouwtype:
Andere
Type verwarming:
Overige
Meubilair:
Andere
Toon alle parameters
Leeftijd van aanbieding:
1 dagen
Bijgewerkt:
1 dagen
Advertentie melden
Locatie
CLAMART
De locatie is voorlopig, het exacte adres is onbekend.
Exact adres aanvragen
Kaart vergroten
Publieke voorzieningen
IAD France
Telefoon weergeven
Contacteer verkoper
IAD France
Telefoon weergeven
Contacteer verkoper
Vergelijkbare aanbiedingen
|
Vergelijkbare in het buitenland
|
Verkoop
Appartementen
Frankrijk