Verkoop
Verhuur
Blog
Over ons
+ Eigenschap toevoegen
Menu
Lijst van aanbiedingen
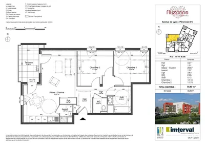
234 000 €
(3 343 € / m²)
Verkoop
3
1
70 m²
PERONNAS
Op kaart weergeven
Toevoegen aan favorieten
Delen
slaapkamer
3
oppervlakte
70 m²
badkamers
1
lift
Ja
parkeren
Nee
staat
Overige
kelder
Nee
terras
Ja
Beschrijving
Vertalen naar Engels
Au coeur de Péronnas, ALIZARINE est la dernière pièce du projet COEUR de VILLE, menée avec la mairie, qui restructure le centre-ville. Venez découvri...
Toon volledige beschrijving
Parameters
Uitrusting & eigenschappen
Lift
Parameters
Eigendom:
Overige
Staat:
Overige
Gebouwtype:
Andere
Type verwarming:
Gas
Meubilair:
Andere
Toon alle parameters
Leeftijd van aanbieding:
12 dagen
Bijgewerkt:
12 dagen
Advertentie melden
Locatie
PERONNAS
De locatie is voorlopig, het exacte adres is onbekend.
Exact adres aanvragen
Kaart vergroten
Publieke voorzieningen
l'Adresse Bourg-en-Bresse - l'Adresse Bourg-en-Bresse
Telefoon weergeven
Contacteer verkoper
l'Adresse Bourg-en-Bresse - l'Adresse Bourg-en-Bresse
Telefoon weergeven
Contacteer verkoper
Vergelijkbare aanbiedingen
|
Vergelijkbare in het buitenland
|
Verkoop
Appartementen
Frankrijk