Verkoop
Verhuur
Blog
Over ons
+ Eigenschap toevoegen
Menu
Lijst van aanbiedingen
4
4
345 000 €
(5 308 € / m²)
Verkoop
3
1
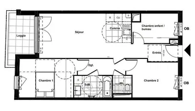
65 m²
MONTREUIL
Op kaart weergeven
Toevoegen aan favorieten
Delen
slaapkamer
3
oppervlakte
65 m²
badkamers
1
lift
Nee
parkeren
Nee
staat
Overige
kelder
Nee
terras
Nee
Beschrijving
Vertalen naar Engels
Fiche N°Id-LGB166034 : Montreuil, 3 Pi?ces 3/4p -loggia ouest - parking - cave d'environ 65 m2 comprenant 3 piece(s) dont 2 chambre(s) - Construction...
Toon volledige beschrijving
Parameters
Parameters
Eigendom:
Overige
Staat:
Overige
Gebouwtype:
Andere
Type verwarming:
Overige
Meubilair:
Andere
Leeftijd van aanbieding:
3 dagen
Bijgewerkt:
3 dagen
Advertentie melden
Locatie
MONTREUIL
De locatie is voorlopig, het exacte adres is onbekend.
Exact adres aanvragen
Kaart vergroten
Publieke voorzieningen
Réseau Immo-diffusion
Telefoon weergeven
Contacteer verkoper
Réseau Immo-diffusion
Telefoon weergeven
Contacteer verkoper
Vergelijkbare aanbiedingen
|
Vergelijkbare in het buitenland
|
Verkoop
Appartementen
Frankrijk