Verkoop
Verhuur
Blog
Over ons
+ Eigenschap toevoegen
Menu
Lijst van aanbiedingen
10
10
10
7 495 €
(37 € / m²)
Huur
filters.disposition_4
1
200 m²
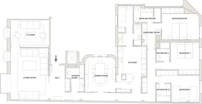
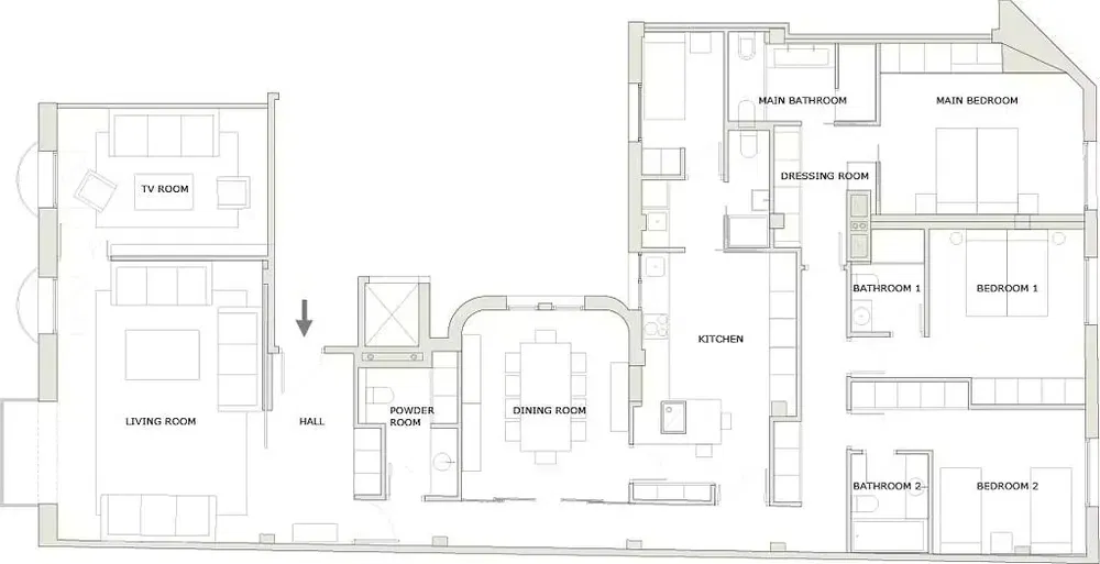
Calle de Zurbarán, Madrid
Op kaart weergeven
Toevoegen aan favorieten
Delen
slaapkamer
4
oppervlakte
200 m²
badkamers
1
lift
Nee
parkeren
Nee
staat
Overige
kelder
Nee
terras
Nee
Beschrijving
Vertalen naar Engels
For more details, please visit https://housinganywhere.com/room/ut1535569/es/Madrid/calle-de-zurbar-n?utm_content=Madrid&utm_medium=affiliate&utm_sour...
Toon volledige beschrijving
Parameters
Uitrusting & eigenschappen
Airconditioning
Parameters
Eigendom:
Overige
Staat:
Overige
Gebouwtype:
Andere
Type verwarming:
Overige
Meubilair:
Ingericht
Leeftijd van aanbieding:
363 dagen
Bijgewerkt:
2 dagen
Advertentie melden
Locatie
Calle de Zurbarán, Madrid
De locatie is voorlopig, het exacte adres is onbekend.
Exact adres aanvragen
Kaart vergroten
Publieke voorzieningen
HousingAnywhere
Telefoon weergeven
Contacteer verkoper
HousingAnywhere
Telefoon weergeven
Contacteer verkoper
Vergelijkbare aanbiedingen
|
Vergelijkbare in het buitenland
|
Huur
Appartementen
Spanje