Verkoop
Huur
Blog
Over ons
+ Eigendom toevoegen
Menu
Lijst met aanbiedingen
10
10
10
1 190 €
(31 € / m²)
Huur
Atypisch
1
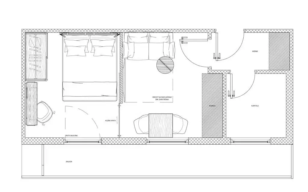
39 m²
Mexikoplatz
Toon op de kaart
Toevoegen aan favorieten
Deel
slaapkamer
atypical
vlak
39 m²
badkamers
1
tillen
Nee
parkeren
Nee
staat
Ander
kelder
Nee
terras
Nee
Beschrijving
Vertalen naar Engels
For more details, please visit https://housinganywhere.com/room/ut1663328/at/Vienna/mexikoplatz?utm_medium=affiliate&utm_source=list_globally&affiliat...
Toon volledige beschrijving
Parameters
Parameters
Eigendom:
Ander
Staat:
Ander
gebouwtype:
Ander
Verwarmingstype:
Ander
Apparatuur:
gemeubileerd
Leeftijd van het aanbod:
72dagen
Bijgewerkt:
1dagen
Rapporteer advertentie
Plaatsen
Mexikoplatz
De locatie is bij benadering, we kennen het exacte adres niet.
Geef het exacte adres op.
Kaart vergroten
Openbare voorzieningen
HousingAnywhere
Toon telefoon
Neem contact op met de verkoper
HousingAnywhere
Toon telefoon
Neem contact op met de verkoper
Vergelijkbare advertenties
Vergelijkbaar in het buitenland
Huur
Appartementen
Oostenrijk