Vendita
Affitto
Blog
Chi siamo
+ Aggiungi offerta
Menu
Elenco offerte
5
1 453 583 €
(10 094 € / m²)
Vendita
Atipico
1
144 m²
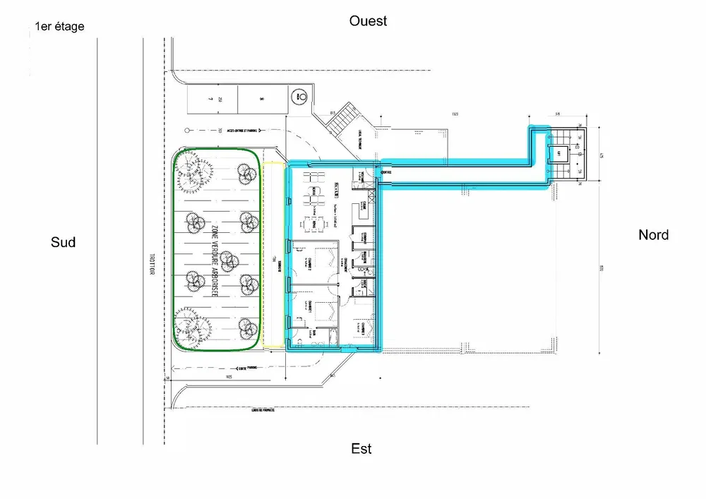
Route de Monteiller, Savièse
Mostra sulla mappa
Aggiungi ai preferiti
Condividi
camera da letto
atypical
superficie
144 m²
bagno
1
ascensore
Sì
parcheggio
No
stato
Altri
seminterrato
No
terrazza
No
Descrizione
Tradurre in inglese
PROMOTION - PPE de 3 appartements en terrasse à Monteiller - SavièseMonteiller, quartier paisible de Savièse, découvrez cet immeuble contemporain comp...
Mostra descrizione completa
Parametri
Attrezzature & caratteristiche
Ascensore
Parametri
Proprietà:
Altri
Stato:
Altri
Tipologia di edificio:
Altri
Tipo di riscaldamento:
Altri
Arredato:
Altri
Età offerta:
2 giorni
Aggiornato:
2 giorni
Segnala annuncio
Località
Route de Monteiller, Savièse
La località è indicativa, non conosciamo l'indirizzo preciso.
Richiedi indirizzo esatto
Ingrandisci mappa
Servizi civici
Roqu'immo
Mostra telefono
Contatta venditore
Roqu'immo
Mostra telefono
Contatta venditore
Offerte simili
|
Simili all'estero
|
Vendita
Appartamenti
Svizzera