Vendita
Affitto
Blog
Chi siamo
+ Aggiungi offerta
Menu
Elenco offerte
5
5
5
380 000 €
(3 040 € / m²)
Vendita
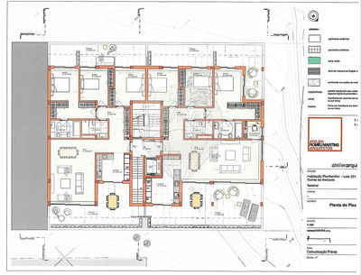
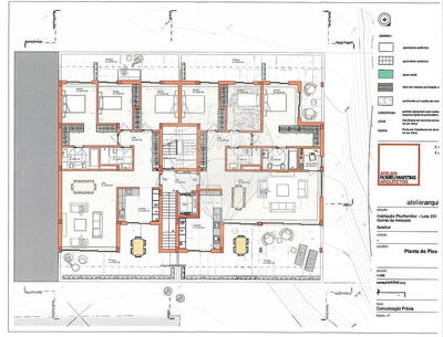
3
2+
125 m²
Setúbal
Mostra sulla mappa
Aggiungi ai preferiti
Condividi
camera da letto
3
superficie
125 m²
bagni
2+
ascensore
No
parcheggio
No
stato
Altri
seminterrato
No
terrazza
Sì
Descrizione
Tradurre in inglese
Empreendimento com Apartamentos T3, com terraço e garagem, para venda a partir 380 mil euros Edifício de 3 andares, composto por seis frações localiz...
Mostra descrizione completa
Parametri
Parametri
Proprietà:
Altri
Stato:
Altri
Consumo energetico:
A - Estremamente economica
Tipologia di edificio:
Altri
Tipo di riscaldamento:
Altri
Mostra tutti i parametri
Età offerta:
352 giorni
Aggiornato:
352 giorni
Segnala annuncio
Località
Setúbal
La località è indicativa, non conosciamo l'indirizzo preciso.
Richiedi indirizzo esatto
Ingrandisci mappa
Servizi civici
Collection Vantagem Aqua
Mostra telefono
Contatta venditore
Collection Vantagem Aqua
Mostra telefono
Contatta venditore
Offerte simili
|
Simili all'estero
|
Vendita
Appartamenti
Portogallo