Vendita
Affitto
Blog
Chi siamo
+ Aggiungi offerta
Menu
Elenco offerte
12
12
12
599 000 PLN
(11 093 PLN / m²)
Vendita
3
1
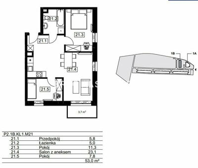
54 m²
Agatowa, Kraków
Mostra sulla mappa
Aggiungi ai preferiti
Condividi
camera da letto
3
superficie
54 m²
bagno
1
ascensore
No
parcheggio
No
stato
seminterrato
No
terrazza
No
Descrizione
Tradurre in inglese
ZŁOCIEŃ - NOWOCZESNE OSIEDLE MIESZKANIOWE. Prezentujemy nowoczesne osiedle zlokalizowane w południowo-wschodniej części miasta. W III etapie powstani...
Mostra descrizione completa
Parametri
Parametri
Proprietà:
Personale
Tipologia di edificio:
Altri
Tipo di riscaldamento:
Altri
Arredato:
Altri
Età offerta:
774 giorni
Aggiornato:
774 giorni
Segnala annuncio
Località
Agatowa, Kraków
La località è indicativa, non conosciamo l'indirizzo preciso.
Richiedi indirizzo esatto
Ingrandisci mappa
Servizi civici
BRACIA SADURSCY
Dariusz Zieliński
Mostra e-mail
Mostra telefono
Contatta venditore
BRACIA SADURSCY
Dariusz Zieliński
Mostra e-mail
Mostra telefono
Contatta venditore
Offerte simili
|
Simili all'estero
|
Vendita
Appartamenti
Polonia