Vendita
Contratto di locazione
Blog
Chi siamo
+ Aggiungi proprietà
Menu
Elenco delle offerte
5
890 473 PLN
(14 362 PLN / mq)
Vendita
3
1
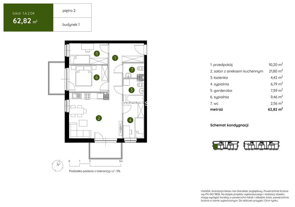
62 mq
Mostra sulla mappa
Aggiungi ai preferiti
Condividere
camera da letto
3
piatto
62 mq
bagni
1
sollevare
NO
parcheggio
NO
stato
seminterrato
NO
terrazza
NO
Descrizione
Traduci in Inglese
Z ogromną przyjemnością przedstawiamy Państwu ofertę mieszkania na sprzedaż w malowniczym rejonie Doliny Prądnika, na północy Krakowa, blisko granicy...
Mostra la descrizione completa
Parametri
Attrezzatura e caratteristiche
Internet
Parametri
Proprietà:
Altro
Tipo di edificio:
Altro
Tipo di riscaldamento:
Altro
Attrezzatura:
Altro
Età dell'offerta:
76giorni
Aggiornato:
58giorni
Segnala annuncio
Località
La posizione è approssimativa, non conosciamo l'indirizzo esatto.
Richiedi l'indirizzo esatto
Ingrandisci la mappa
Servizi civici
BRACIA SADURSCY
Patrycja Rubinkiewicz
Mostra e-mail
Mostra telefono
Contatta il venditore
BRACIA SADURSCY
Patrycja Rubinkiewicz
Mostra e-mail
Mostra telefono
Contatta il venditore
Annunci simili
|
Simile all'estero
|
Vendita
Appartamenti
Polonia