Vendita
Contratto di locazione
Blog
Chi siamo
+ Aggiungi proprietà
Menu
Elenco delle offerte
6
6
6
223 000 €
(5 068 € / mq)
Vendita
2
1
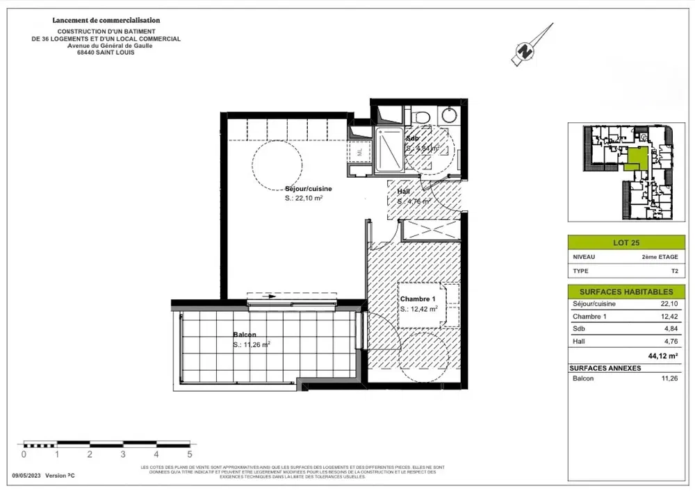
44 mq
Mostra sulla mappa
Aggiungi ai preferiti
Condividere
camera da letto
2
piatto
44 mq
bagni
1
sollevare
SÌ
parcheggio
NO
stato
Altro
seminterrato
NO
terrazza
SÌ
Descrizione
Traduci in Inglese
Découvrez ce beau F2 dans une résidence située à Saint-Louis en hyper centre, au coeur des 3 frontières, à proximité des commerces, des écoles, ainsi ...
Mostra la descrizione completa
Parametri
Attrezzatura e caratteristiche
Sollevare
Generato dall'intelligenza artificiale
Terrazza
Parametri
Proprietà:
Altro
Stato:
Altro
Intensità energetica:
B - Molto economico
Tipo di edificio:
Altro
Tipo di riscaldamento:
Altro
Mostra tutti i parametri
Età dell'offerta:
405giorni
Aggiornato:
404giorni
Segnala annuncio
Località
La posizione è approssimativa, non conosciamo l'indirizzo esatto.
Richiedi l'indirizzo esatto
Ingrandisci la mappa
Servizi civici
Loralis Immobilier
Mostra telefono
Contatta il venditore
Loralis Immobilier
Mostra telefono
Contatta il venditore
Annunci simili
Simile all'estero
Vendita
Appartamenti
Francia