Vendita
Affitto
Blog
Chi siamo
+ Aggiungi offerta
Menu
Elenco offerte
8
8
8
251 000 €
(5 976 € / m²)
Vendita
2
1
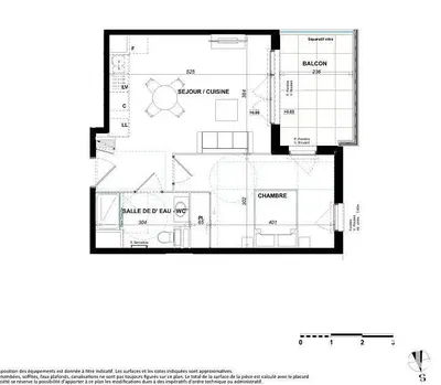
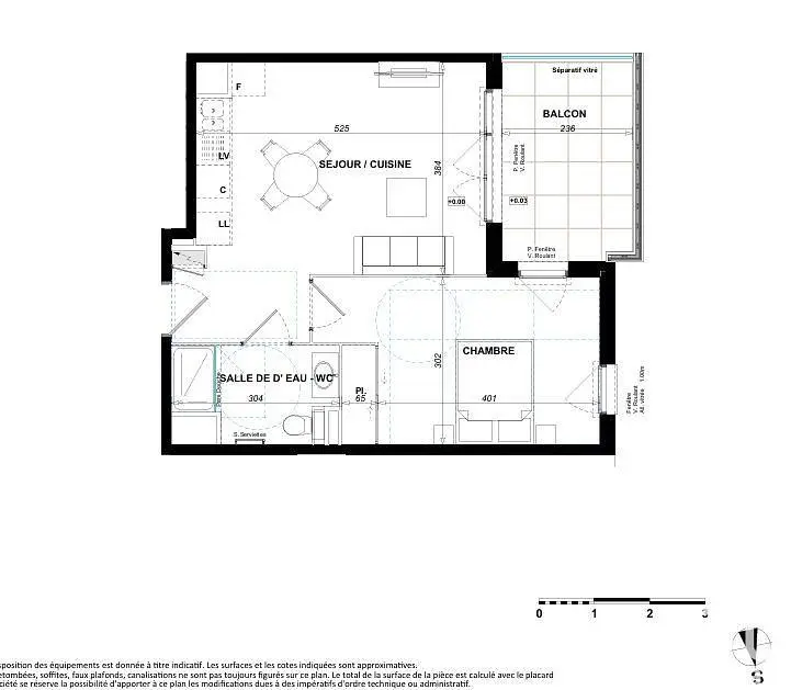
42 m²
ANTIBES
Mostra sulla mappa
Aggiungi ai preferiti
Condividi
camera da letto
2
superficie
42 m²
bagno
1
ascensore
Sì
parcheggio
No
stato
Altri
seminterrato
No
terrazza
Sì
Descrizione
Tradurre in inglese
iad France - Cyril Fournier (06 34 26 49 62) vous propose : Appartement 2 pièces avec terrasse – AntibesAu 1?? étage d’une résidence contemporaine, ce...
Mostra descrizione completa
Parametri
Attrezzature & caratteristiche
Ascensore
Generato da AI
Terrazza
Parametri
Proprietà:
Altri
Stato:
Altri
Tipologia di edificio:
Altri
Tipo di riscaldamento:
Altri
Arredato:
Altri
Età offerta:
4 giorni
Aggiornato:
2 giorni
Segnala annuncio
Località
ANTIBES
La località è indicativa, non conosciamo l'indirizzo preciso.
Richiedi indirizzo esatto
Ingrandisci mappa
Servizi civici
IAD France
Mostra telefono
Contatta venditore
IAD France
Mostra telefono
Contatta venditore
Offerte simili
|
Simili all'estero
|
Vendita
Appartamenti
Francia