Vendita
Affitto
Blog
Chi siamo
+ Aggiungi offerta
Menu
Elenco offerte
5
202 000 €
(3 206 € / m²)
Vendita
filters.disposition_4
1
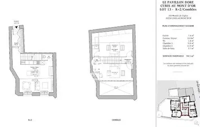
63 m²
Curis-au-Mont-d'Or
Mostra sulla mappa
Aggiungi ai preferiti
Condividi
camera da letto
4
superficie
63 m²
bagno
1
ascensore
No
parcheggio
No
stato
Altri
seminterrato
No
terrazza
No
Descrizione
Tradurre in inglese
Coldwell Banker exclusively offers this duplex space of 63.3 m², located within a former character estate, once a guest house and now transformed into...
Mostra descrizione completa
Parametri
Generato da AI
Soggiorno aperto
Doccia
Parametri
Proprietà:
Altri
Stato:
Altri
Consumo energetico:
C - Risparmio
Tipologia di edificio:
Altri
Tipo di riscaldamento:
Altri
Mostra tutti i parametri
Età offerta:
30 giorni
Aggiornato:
30 giorni
Segnala annuncio
Località
Curis-au-Mont-d'Or
La località è indicativa, non conosciamo l'indirizzo preciso.
Richiedi indirizzo esatto
Ingrandisci mappa
Servizi civici
Coldwell Banker Heritage Realty Lyon
Mostra telefono
Contatta venditore
Coldwell Banker Heritage Realty Lyon
Mostra telefono
Contatta venditore
Offerte simili
|
Simili all'estero
|
Vendita
Appartamenti
Francia