Vendita
Affitto
Blog
Chi siamo
+ Aggiungi offerta
Menu
Elenco offerte
6
6
6
366 000 €
(6 203 € / m²)
Vendita
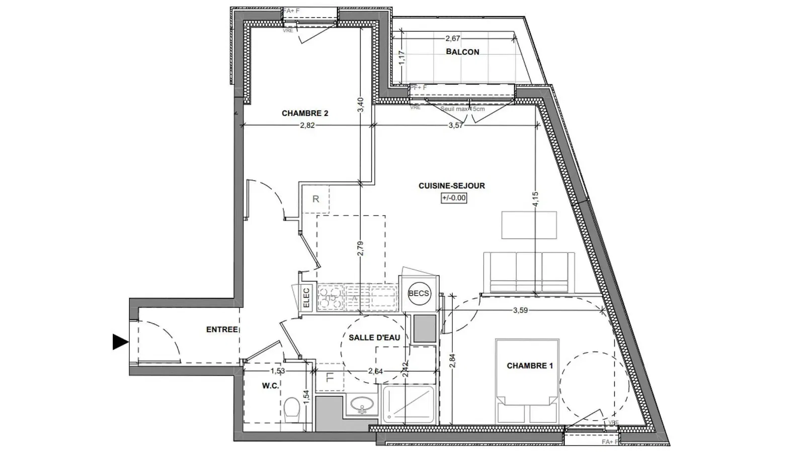
3
1
59 m²
SAINT-MALO
Mostra sulla mappa
Aggiungi ai preferiti
Condividi
camera da letto
3
superficie
59 m²
bagno
1
ascensore
Sì
parcheggio
No
stato
Altri
seminterrato
No
terrazza
No
Descrizione
Tradurre in inglese
iad France - Pierre Magerand (06 37 21 92 42) vous propose : Appartement T3 avec balcon à Saint-Malo.Située rue Amiral Leverger, au cOEur d’un environ...
Mostra descrizione completa
Parametri
Attrezzature & caratteristiche
Ascensore
Parametri
Proprietà:
Altri
Stato:
Altri
Tipologia di edificio:
Altri
Tipo di riscaldamento:
Altri
Arredato:
Altri
Mostra tutti i parametri
Età offerta:
17 giorni
Aggiornato:
4 giorni
Segnala annuncio
Località
SAINT-MALO
La località è indicativa, non conosciamo l'indirizzo preciso.
Richiedi indirizzo esatto
Ingrandisci mappa
Servizi civici
IAD France
Mostra telefono
Contatta venditore
IAD France
Mostra telefono
Contatta venditore
Offerte simili
|
Simili all'estero
|
Vendita
Appartamenti
Francia