Vendita
Contratto di locazione
Blog
Chi siamo
+ Aggiungi proprietà
Menu
Elenco delle offerte
7
7
7
459 880 €
(4 380 € / mq)
Vendita
5
1
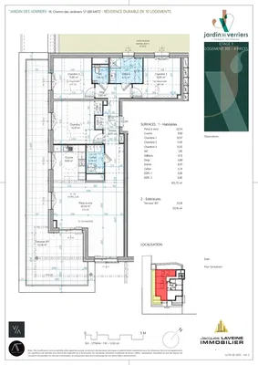
105 mq
Mostra sulla mappa
Aggiungi ai preferiti
Condividere
camera da letto
5
piatto
105 mq
bagni
1
sollevare
SÌ
parcheggio
NO
stato
Altro
seminterrato
NO
terrazza
SÌ
Descrizione
Traduci in Inglese
UNIQUE A METZ-SABLON! Dans un quartier prisé à proximité de toutes commodités, au calme en retrait de la circulation, dans résidence de standing neuve...
Mostra la descrizione completa
Parametri
Attrezzatura e caratteristiche
Sollevare
Parametri
Proprietà:
Altro
Stato:
Altro
Tipo di edificio:
Altro
Tipo di riscaldamento:
Pompa di calore
Attrezzatura:
Altro
Mostra tutti i parametri
Età dell'offerta:
228giorni
Aggiornato:
133giorni
Segnala annuncio
Località
La posizione è approssimativa, non conosciamo l'indirizzo esatto.
Richiedi l'indirizzo esatto
Ingrandisci la mappa
Servizi civici
JACQUES LAVEINE IMMOBILIER METZ TRANSACTION
Mostra telefono
Contatta il venditore
JACQUES LAVEINE IMMOBILIER METZ TRANSACTION
Mostra telefono
Contatta il venditore
Annunci simili
|
Simile all'estero
|
Vendita
Appartamenti
Francia