Vendita
Affitto
Blog
Chi siamo
+ Aggiungi offerta
Menu
Elenco offerte
17
17
17
173 710 €
(2 380 € / m²)
Vendita
3
1
73 m²
Saint-Jeoire
Mostra sulla mappa
Aggiungi ai preferiti
Condividi
camera da letto
3
superficie
73 m²
bagno
1
ascensore
No
parcheggio
No
stato
Altri
seminterrato
No
terrazza
No
Descrizione
Tradurre in inglese
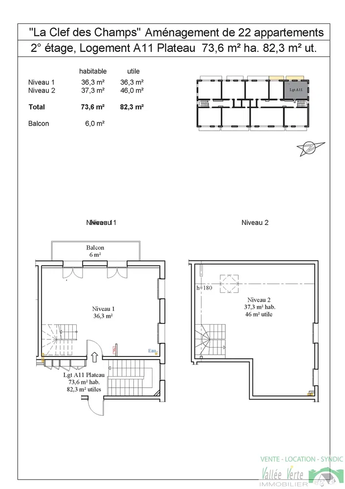
Dans un ensemble immobilier de 22 logements/plateaux sur les hauteurs de Saint-Jeoire, Plateau type T3 au 2ème étage d'une surface de 73.60 m2 + Balco...
Mostra descrizione completa
Parametri
Parametri
Proprietà:
Altri
Stato:
Altri
Tipologia di edificio:
Altri
Tipo di riscaldamento:
Altri
Arredato:
Altri
Età offerta:
248 giorni
Aggiornato:
247 giorni
Segnala annuncio
Località
Saint-Jeoire
La località è indicativa, non conosciamo l'indirizzo preciso.
Richiedi indirizzo esatto
Ingrandisci mappa
Servizi civici
Vallée Verte Immobilier - Habère-lullin
Mostra telefono
Contatta venditore
Vallée Verte Immobilier - Habère-lullin
Mostra telefono
Contatta venditore
Offerte simili
|
Simili all'estero
|
Vendita
Appartamenti
Francia