Vendita
Contratto di locazione
Blog
Chi siamo
+ Aggiungi proprietà
Menu
Elenco delle offerte
799 000 €
(8 685 € / mq)
Vendita
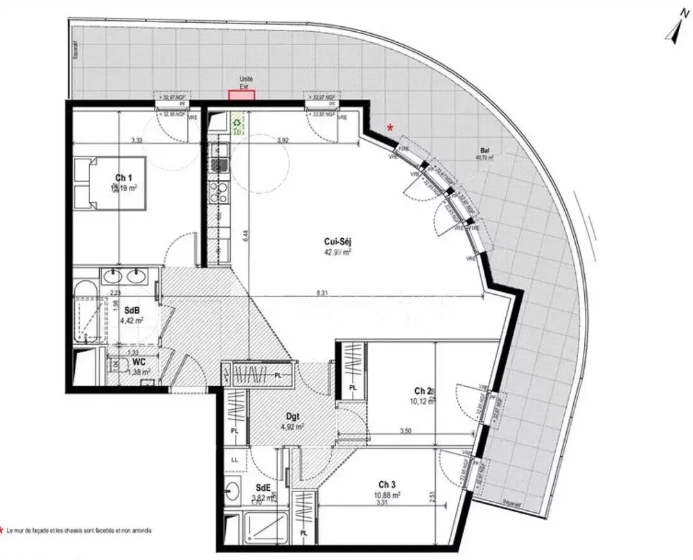
4
1
92 mq
Mostra sulla mappa
Aggiungi ai preferiti
Condividere
camera da letto
4
piatto
92 mq
bagni
1
sollevare
SÌ
parcheggio
NO
stato
Nuova costruzione
seminterrato
NO
terrazza
NO
Descrizione
Traduci in Inglese
VILLA ROSSA / Gare du sud / Nouvelle adresse au cœur du quartier de la Libération /Appartement 4P 92m2 étage élevé/ BALCON 40,5m2 / Parking en sus
...
Mostra la descrizione completa
Parametri
Attrezzatura e caratteristiche
Sollevare
Parametri
Proprietà:
Altro
Stato:
Nuova costruzione
Tipo di edificio:
Altro
Tipo di riscaldamento:
Altro
Attrezzatura:
Altro
Età dell'offerta:
313giorni
Aggiornato:
313giorni
Segnala annuncio
Località
La posizione è approssimativa, non conosciamo l'indirizzo esatto.
Richiedi l'indirizzo esatto
Ingrandisci la mappa
Servizi civici
Palais Immobilier - Villefranche
Mostra telefono
Contatta il venditore
Palais Immobilier - Villefranche
Mostra telefono
Contatta il venditore
Annunci simili
|
Simile all'estero
|
Vendita
Appartamenti
Francia