Vendita
Contratto di locazione
Blog
Chi siamo
+ Aggiungi proprietà
Menu
Elenco delle offerte
Prezzo su richiesta
Contratto di locazione
1
1
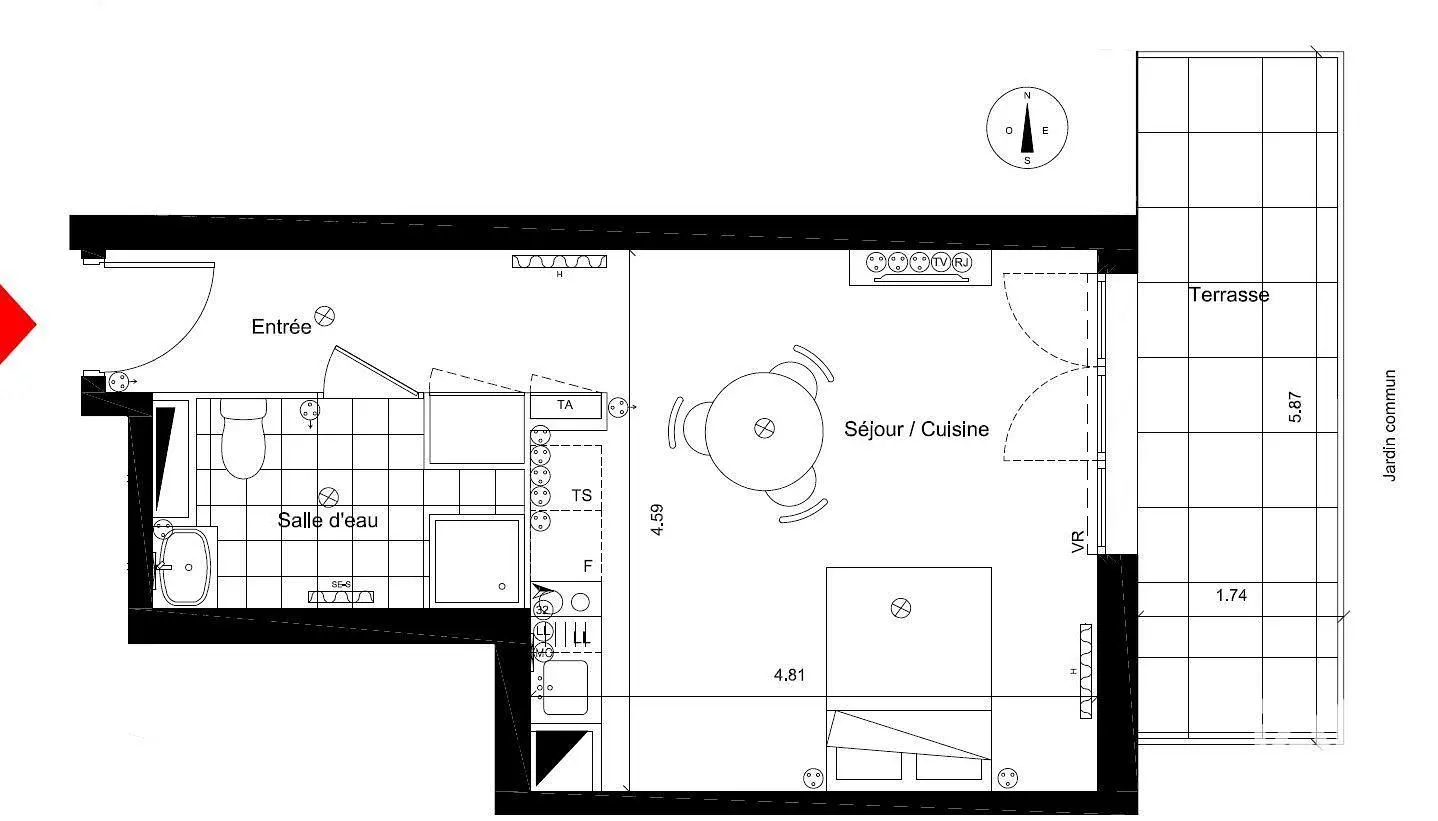
31 mq
Rue des Carmélites, Saint-Denis
Mostra sulla mappa
Aggiungi ai preferiti
Condividere
camera da letto
1
piatto
31 mq
bagni
1
sollevare
SÌ
parcheggio
NO
stato
Altro
seminterrato
NO
terrazza
SÌ
Descrizione
Traduci in Inglese
iad France - Nicolas Vysavat (06 51 41 93 21) vous propose : Location nue soumise au dispositif de la loi Pinel (sous conditions de ressources)Veuille...
Mostra la descrizione completa
Parametri
Attrezzatura e caratteristiche
Sollevare
Parametri
Proprietà:
Altro
Stato:
Altro
Intensità energetica:
A - Estremamente economico
Tipo di edificio:
Altro
Tipo di riscaldamento:
Altro
Mostra tutti i parametri
Età dell'offerta:
15giorni
Aggiornato:
1giorni
Segnala annuncio
Località
Rue des Carmélites, Saint-Denis
La posizione è approssimativa, non conosciamo l'indirizzo esatto.
Richiedi l'indirizzo esatto
Ingrandisci la mappa
Servizi civici
IAD France
Mostra telefono
Contatta il venditore
IAD France
Mostra telefono
Contatta il venditore
Annunci simili
|
Simile all'estero
|
Affitto
Appartamenti
Francia