Prodaja
Najam
Blog
O nama
+ Dodaj nekretninu
Izbornik
Popis ponuda
13
13
13
140 014 €
(2 456 € / m²)
Prodaja
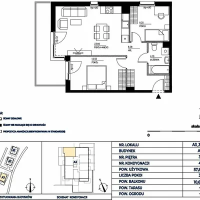
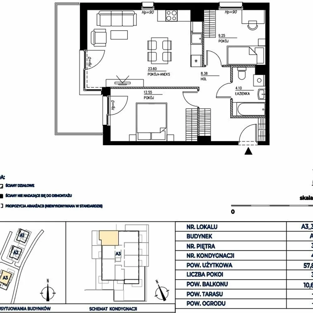
3
1
57 m²
Stankiewicza, Gdańsk
Prikaži na karti
U favorite
Podijeli
spavaće sobe
0
površina
57 m²
kupaonice
1
dizalo
Ne
parkiranje
Ne
stanje
podrum
Ne
terasa
Ne
Opis
Prevedi u engleskog
NOWA INWESTYCJA NA MAPIE GDAŃSKA Mamy przyjemność przedstawić nową inwestycję, składającą się z 6 bloków wielorodzinnych . Zaledwie 4 kondygnacje ora...
Prikaži cijeli opis
Parametri
Parametri
Vlasništvo:
Ostali
Vrsta zgrade:
Ostali
Vrsta grijanja:
Centralno daljinsko
Namještaj:
Ostali
Starost ponude:
614 dana
Ažurirano:
614 dana
Prijavi oglas
Lokacija
Stankiewicza, Gdańsk
Lokacija je približna, ne znamo točnu adresu.
Zatraži točnu adresu
Povećaj kartu
Komunalni sadržaji
BRACIA SADURSCY
Arkadiusz Zemła
Prikaži Email
Prikaži telefon
Kontaktirati prodavača
BRACIA SADURSCY
Arkadiusz Zemła
Prikaži Email
Prikaži telefon
Kontaktirati prodavača
Slični oglasi
|
Slično u inozemstvu
|
Prodaja
Stanovi
Poljska