Prodaja
Zakup
Razvojni projekti
Blog
O nama
+ Dodaj svojstvo
Prijavi se
Jelovnik
Popis ponuda
7
7
7
144 044 €
(1 426 € / m²)
Prodaja
Atipično
1
101 m²
Царевец
Prikaži na karti
Dodaj u favorite
Udio
spavaća soba
atypical
stan
101 m²
kupaonice
1
lift
Ne
parkiralište
Ne
stanje
Ostalo
podrum
Ne
terasa
Ne
Opis
Prevedi na engleski
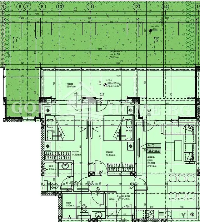
📢 0% КОМИСИОН - НОВО ПРЕДЛОЖЕНИЕ ! 📢 ОФЕРТА : 19772 Възможност за покупка на двустайни , тристайни и четиристайни апартаменти . 💰РАЗСРОЧЕНА СХЕМ...
Prikaži puni opis
Parametri
Parametri
Vlasništvo:
Vrsta vlasništva određuje pravni odnos prema nekretnini - osobni, zadružni ili državni/općinski.
Ostalo
Stanje:
Trenutno stanje nekretnine u smislu rekonstrukcije - prije, poslije ili tijekom rekonstrukcije.
Ostalo
Vrsta zgrade:
Ostalo
Vrsta grijanja:
Ostalo
Oprema:
Ostalo
Dob ponude:
3dana
Ažurirano:
3dana
Prijavi oglas
Lokaliteti
Царевец
Lokacija je približna, ne znamo točnu adresu.
Zatražite točnu adresu
Uvećaj kartu
Građanski sadržaji
ГОЛД ИМОТИ
Prikaži telefon
Kontaktirajte prodavatelja
ГОЛД ИМОТИ
Prikaži telefon
Kontaktirajte prodavatelja
Slični oglasi
Slično u inozemstvu
Prodaja
Stanovi
Bugarska
Kontaktirajte prodavatelja