SUPA24
Dječja soba; drveni pod, prirodna svjetlost
Ostale
Dječja soba; drveni pod, prirodna svjetlost
Ostale
Ostale; drveni pod, prirodna svjetlost
592 €
(19 € / m²)
Zakup
1
1
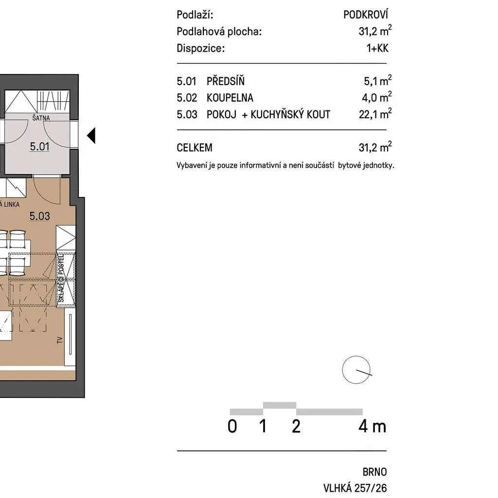
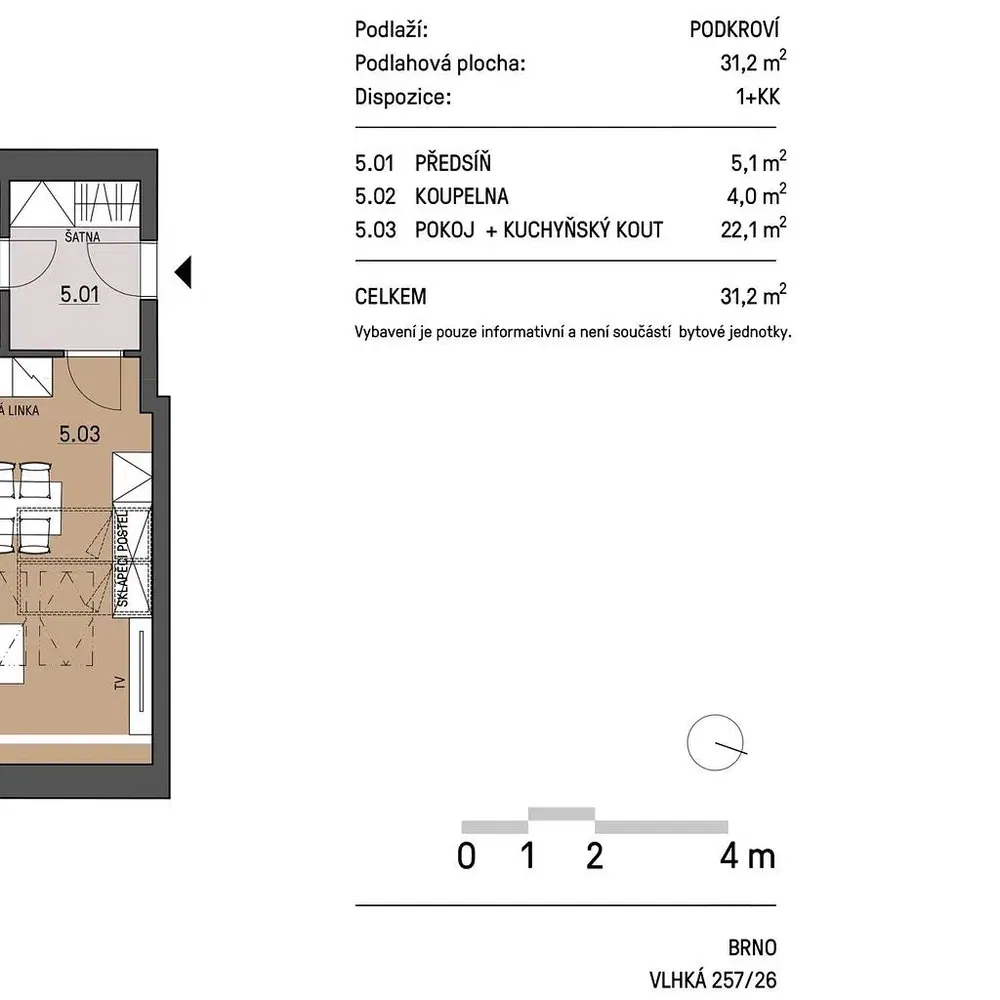
31 m²
Vlhká, Brno

spavaća soba1
stan31 m²
kupaonice1
liftNe
parkirališteNe
stanjeNakon rekonstrukcije
podrumNe
terasaNe

Opis

Útulný a světlý byt 1+kk k pronájmu na adrese Vlhká 26 se nachází v 5. patře a nabízí podlahovou plochu 31,2 m². Byt je bez nábytku, takže si ho můžet...

Parametri

Parametri

Vlasništvo:
Osobno
Stanje:
Nakon rekonstrukcije
Energetski intenzitet:
G - Iznimno rasipno
Vrsta zgrade:
Cigla
Vrsta grijanja:
Ostalo
Dob ponude: 5dana
Ažurirano: 5dana

Lokaliteti

Vlhká, Brno
Lokacija je približna, ne znamo točnu adresu.

Građanski sadržaji

REALMAN REALMAN


Klára Neveselá - FIDUROCK - AGREGACE