SUPA24
Autre
142 250 €
(1 897 € / m²)
Vente
Atypique
1
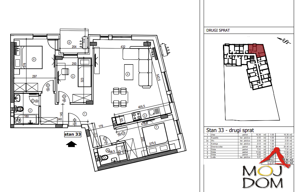
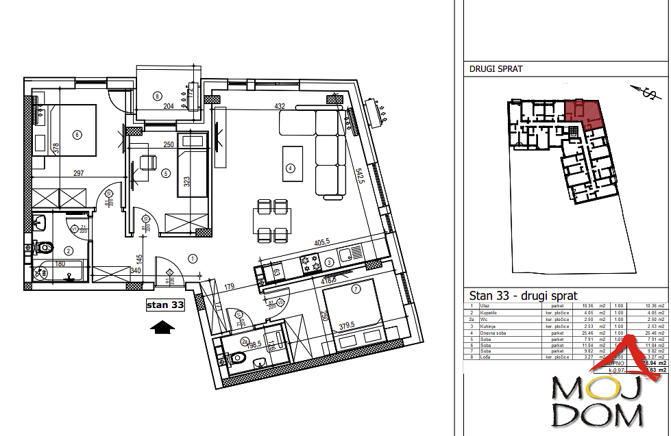
75 m²
Божидара Аџије

chambre à coucheratypical
plat75 m²
salles de bains1
ascenseurNon
parkingNon
étatAutre
sous-solNon
terrasseNon

Description

Petrovaradin! Priroda i zelenilo!
Prodajemo stan na urbanoj ali izuzetno mirnoj lokaciji, u zgradi koju gradi pouzdan investitor, na svega 3km od str...

Paramètres

Paramètres

Possession:
Autre
État:
Autre
Type de bâtiment:
Autre
Type de chauffage:
Gaz
Équipement:
Autre
Âge de l'offre: 418jours
Mis à jour: 417jours

Localités

Божидара Аџије
L'emplacement est approximatif, nous ne connaissons pas l'adresse exacte.

Équipements municipaux

MOJ DOM - AGENCIJA ZA NEKRETNINE


Dragana Zorić

Annonces similaires

Pareil à l'étranger