Vente
Location
Blog
À propos de nous
+ Ajouter une offre
Menu
Liste des offres
112 500 €
(1 815 € / m²)
Vente
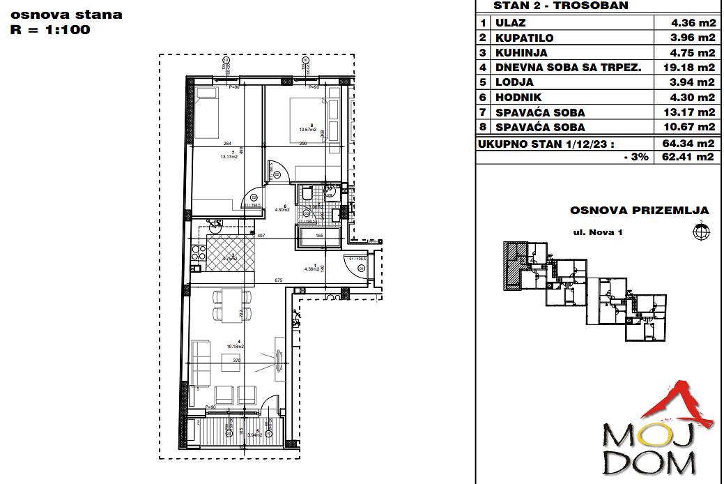
3
1
62 m²
PETROVARADIN, PETROVARADIN
Afficher sur la carte
Aux favoris
Partager
chambre
3
surface
62 m²
salles de bains
1
ascenseur
Non
stationnement
Non
état
Autres
sous-sol
Non
terrasse
Non
Description
Traduire en anglais
Petrovaradin! Vaš mali raj čeka samo na Vas!
Ušuškan, komforan stan, skladnog rasporeda u zgradi koju gradi pouzdan investitor nalaze se u mirnom kraj...
Afficher la description complète
Paramètres
Paramètres
Propriété:
Autres
état:
Autres
Type de bâtiment:
Autres
Type de chauffage:
Gaz
Meublé:
Autres
Âge de l'offre:
308 jours
Mis à jour:
307 jours
Signaler l'annonce
Localisation
PETROVARADIN, PETROVARADIN
La localisation est approximative, l'adresse exacte n'est pas connue.
Demander l'adresse précise
Agrandir la carte
Équipements civiques
MOJ DOM - AGENCIJA ZA NEKRETNINE
Dragana Zorić
Afficher l'e-mail
Afficher le téléphone
Contacter le vendeur
MOJ DOM - AGENCIJA ZA NEKRETNINE
Dragana Zorić
Afficher l'e-mail
Afficher le téléphone
Contacter le vendeur
Annonces similaires
|
Similaire à l'étranger
|
Vente
Appartements
Serbie