Vente
Location
Blog
À propos de nous
+ Ajouter une offre
Menu
Liste des offres
5
5
5
151 726 €
(3 890 € / m²)
Vente
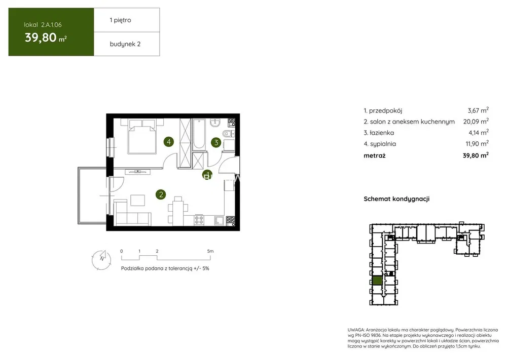
2
1
39 m²
Pękowicka, Kraków
Afficher sur la carte
Aux favoris
Partager
chambre
0
surface
39 m²
salles de bains
1
ascenseur
Non
stationnement
Non
état
sous-sol
Non
terrasse
Non
Description
Traduire en anglais
Z ogromną przyjemnością przedstawiamy Państwu ofertę mieszkania na sprzedaż w malowniczym rejonie Doliny Prądnika, na północy Krakowa, blisko granicy...
Afficher la description complète
Paramètres
Équipement & caractéristiques
Internet
Paramètres
Propriété:
Autres
Type de bâtiment:
Autres
Type de chauffage:
Autres
Meublé:
Autres
Âge de l'offre:
23 jours
Mis à jour:
5 jours
Signaler l'annonce
Localisation
Pękowicka, Kraków
La localisation est approximative, l'adresse exacte n'est pas connue.
Demander l'adresse précise
Agrandir la carte
Équipements civiques
BRACIA SADURSCY
Patrycja Rubinkiewicz
Afficher l'e-mail
Afficher le téléphone
Contacter le vendeur
BRACIA SADURSCY
Patrycja Rubinkiewicz
Afficher l'e-mail
Afficher le téléphone
Contacter le vendeur
Annonces similaires
|
Similaire à l'étranger
|
Sale
Apartments
Pologne