Vente
Location
Blog
À propos de nous
+ Ajouter une offre
Menu
Liste des offres
3
3
314 965 €
(3 539 € / m²)
Vente
filters.disposition_4
1
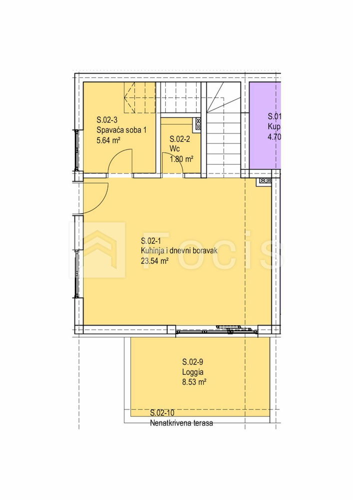
89 m²
Pag
Afficher sur la carte
Aux favoris
Partager
chambre
4
surface
89 m²
salles de bains
1
ascenseur
Oui
stationnement
Oui
état
Autres
sous-sol
Non
terrasse
Oui
Description
Traduire en anglais
Prodaje se dvoetažni stan u mjestu Šimuni na otoku Pagu. Šimuni su manje mjesto u sredini otoka Paga koji su poznati po prekrasnim plažama, zelenim ok...
Afficher la description complète
Paramètres
Équipement & caractéristiques
Loggia
Climatisation
Garage
Ascenseur
Parking privé
Internet
Jardin
Paramètres
Propriété:
Autres
état:
Autres
Type de bâtiment:
Autres
Type de chauffage:
Autres
Meublé:
Autres
Âge de l'offre:
777 jours
Mis à jour:
667 jours
Signaler l'annonce
Localisation
Pag
La localisation est approximative, l'adresse exacte n'est pas connue.
Demander l'adresse précise
Agrandir la carte
Équipements civiques
Focis j.d.o.o. za savjetovanje
Focis Nekretnine
Afficher l'e-mail
Afficher le téléphone
Contacter le vendeur
Focis j.d.o.o. za savjetovanje
Focis Nekretnine
Afficher l'e-mail
Afficher le téléphone
Contacter le vendeur
Annonces similaires
|
Similaire à l'étranger
|
Vente
Appartements
Croatie