Vente
Location
Blog
À propos
+ Ajouter une offre
Menu
Liste des offres
17
17
17
8 725 085 Kč
(132 198 Kč / m²)
Vente
2
1
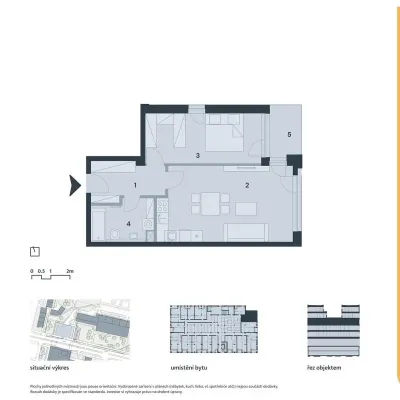
66 m²
Lodžská, Praha
Afficher sur la carte
Dans les favoris
Partager
chambre
0
surface
66 m²
salles de bains
1
ascenseur
Non
stationnement
Non
état
Nouvelle construction
sous-sol
Non
terrasse
Non
Description
Traduire en anglais
Byt 2+kk s lodžií v Rezidenci Odra – nový začátek v srdci Bohnic
Hledáte nový domov v klidné a přitom skvěle dostupné lokalitě? Rezidence Odra je mod...
Afficher la description complète
Paramètres
Paramètres
Propriété:
Personnel
PropriétéÉtat:
Nouvelle construction
Efficacité énergétique:
B - Très économe
Type de bâtiment:
Mixte
Type de chauffage:
Autres
Afficher tous les paramètres
Âge de l'offre:
83 jours
Mis à jour:
46 jours
Signaler l'annonce
Localité
Lodžská, Praha
La localisation est approximative, l'adresse exacte est inconnue.
Demander l'adresse précise
Agrandir la carte
Aménagements publics
REALMAN REALMAN
Martin Kročko - Esty Development Services Praha
Afficher Email
Afficher téléphone
Contacter le vendeur
REALMAN REALMAN
Martin Kročko - Esty Development Services Praha
Afficher Email
Afficher téléphone
Contacter le vendeur
Offres similaires
|
Similaires à l'étranger
|
Sale
Apartments
Tchéquie
Capitale de Prague
Prague
Karlín
Praha 8