Vente
Location
Blog
À propos
+ Ajouter une offre
Menu
Liste des offres
105 450 €
(1 953 € / m²)
Vente
Atypique
1
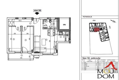
54 m²
PETROVARADIN, PETROVARADIN
Afficher sur la carte
Dans les favoris
Partager
chambre
0
surface
54 m²
salles de bains
1
ascenseur
Non
stationnement
Non
état
Autres
sous-sol
Non
terrasse
Non
Description
Traduire en anglais
Petrovaradin! Priroda i zelenilo!
Prodajemo stan na urbanoj ali izuzetno mirnoj lokaciji, u zgradi koju gradi pouzdan investitor, na svega 3km od str...
Afficher la description complète
Paramètres
Paramètres
Propriété:
Autres
PropriétéÉtat:
Autres
Type de bâtiment:
Autres
Type de chauffage:
Gaz
Aménagement:
Autres
Afficher tous les paramètres
Âge de l'offre:
284 jours
Mis à jour:
283 jours
Signaler l'annonce
Localité
PETROVARADIN, PETROVARADIN
La localisation est approximative, l'adresse exacte est inconnue.
Demander l'adresse précise
Agrandir la carte
Aménagements publics
MOJ DOM - AGENCIJA ZA NEKRETNINE
Dragana Zorić
Afficher Email
Afficher téléphone
Contacter le vendeur
MOJ DOM - AGENCIJA ZA NEKRETNINE
Dragana Zorić
Afficher Email
Afficher téléphone
Contacter le vendeur
Offres similaires
|
Similaires à l'étranger
|
Sale
Apartments
Serbie