Vente
Location
Blog
À propos de nous
+ Ajouter une propriété
Menu
Liste des offres
8
8
8
264 900 €
(4 490 € / m²)
Vente
3
1
59 m²
Chemin de Sauvian, Sauvian
Afficher sur la carte
Ajouter aux favoris
Partager
chambre à coucher
3
plat
59 m²
salles de bains
1
ascenseur
Non
parking
Non
état
Autre
sous-sol
Non
terrasse
Non
Description
Traduire en Anglais
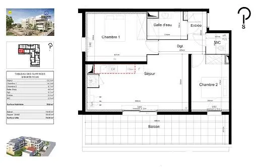
Situé au deuxième étage d'une résidence récente et sécurisée, cet appartement T3 de 59,60 m² offre un agencement fonctionnel et une luminosité naturel...
Afficher la description complète
Paramètres
Paramètres
Possession:
Autre
État:
Autre
type de bâtiment:
Autre
Type de chauffage:
Autre
Équipement:
Autre
Âge de l'offre:
18jours
Mis à jour:
18jours
Signaler une annonce
Localités
Chemin de Sauvian, Sauvian
L'emplacement est approximatif, nous ne connaissons pas l'adresse exacte.
Demander l'adresse exacte
Agrandir la carte
Équipements municipaux
Propriétés Privées
Afficher le téléphone
Contacter le vendeur
Propriétés Privées
Afficher le téléphone
Contacter le vendeur
Annonces similaires
|
Pareil à l'étranger
|
Vente
Appartements
France