Vente
Location
Blog
À propos de nous
+ Ajouter une propriété
Menu
Liste des offres
6
6
6
379 000 €
(6 113 € / m²)
Vente
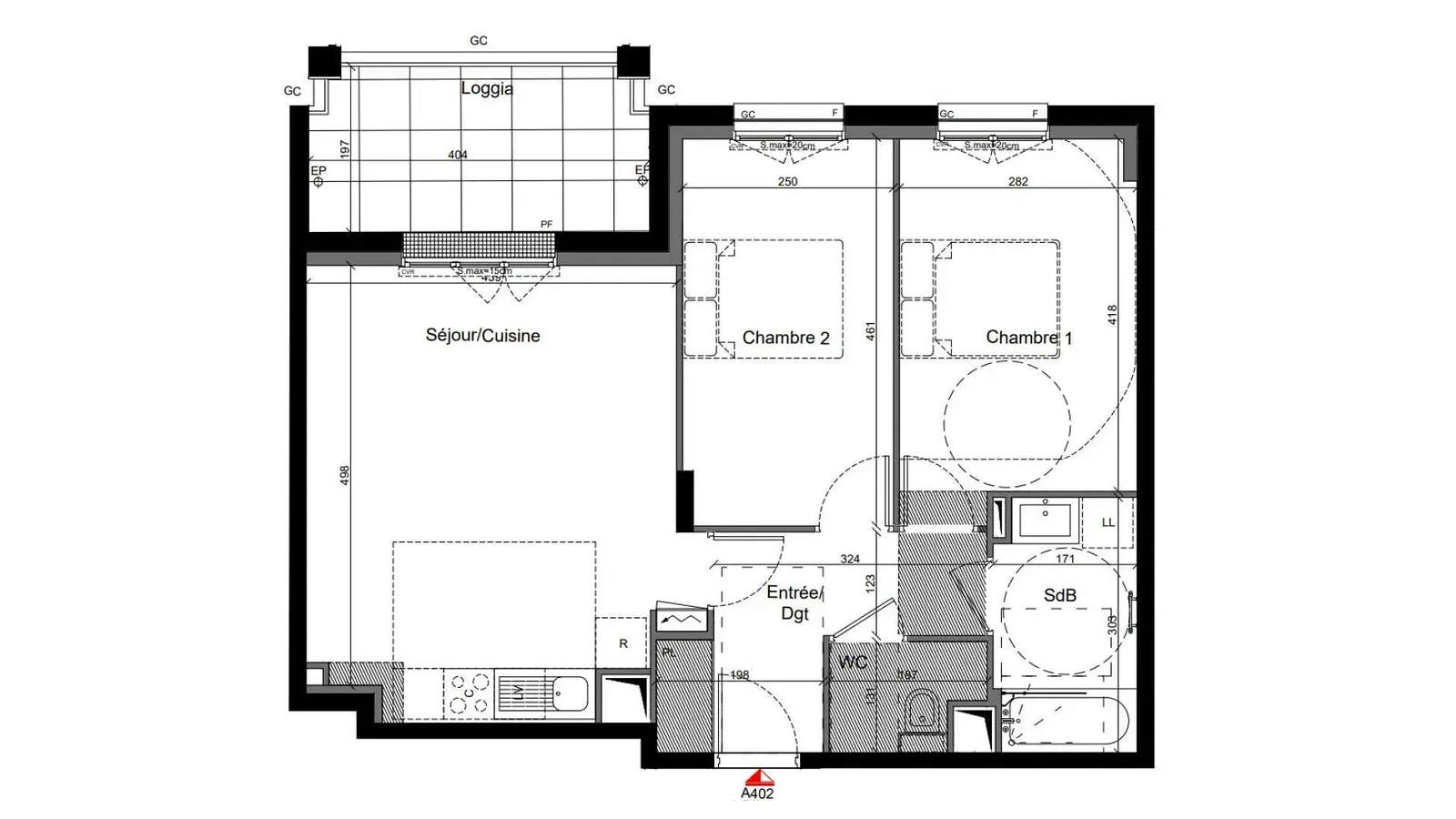
3
1
62 m²
Avenue des Acacias, Clamart
Afficher sur la carte
Ajouter aux favoris
Partager
chambre à coucher
3
plat
62 m²
salles de bains
1
ascenseur
Oui
parking
Non
état
Autre
sous-sol
Non
terrasse
Non
Description
Traduire en Anglais
iad France - Sarah Rozière (06 99 86 19 42) vous propose : Appartement T3 avec balcon à Clamart.Située avenue Réaumur, au cOEur d’un environnement ver...
Afficher la description complète
Paramètres
Équipements et fonctionnalités
Ascenseur
Paramètres
Possession:
Autre
État:
Autre
type de bâtiment:
Autre
Type de chauffage:
Autre
Équipement:
Autre
Afficher tous les paramètres
Âge de l'offre:
117jours
Mis à jour:
1jours
Signaler une annonce
Localités
Avenue des Acacias, Clamart
L'emplacement est approximatif, nous ne connaissons pas l'adresse exacte.
Demander l'adresse exacte
Agrandir la carte
Équipements municipaux
IAD France
Afficher le téléphone
Contacter le vendeur
IAD France
Afficher le téléphone
Contacter le vendeur
Annonces similaires
|
Pareil à l'étranger
|
Vente
Appartements
France