Vente
Location
Blog
À propos
+ Ajouter une offre
Menu
Liste des offres
15
15
15
252 000 €
(1 938 € / m²)
Vente
filters.disposition_6plus
1
130 m²
Dole
Afficher sur la carte
Dans les favoris
Partager
chambre
6+
surface
130 m²
salles de bains
1
ascenseur
Non
stationnement
Non
état
Autres
sous-sol
Non
terrasse
Non
Description
Traduire en anglais
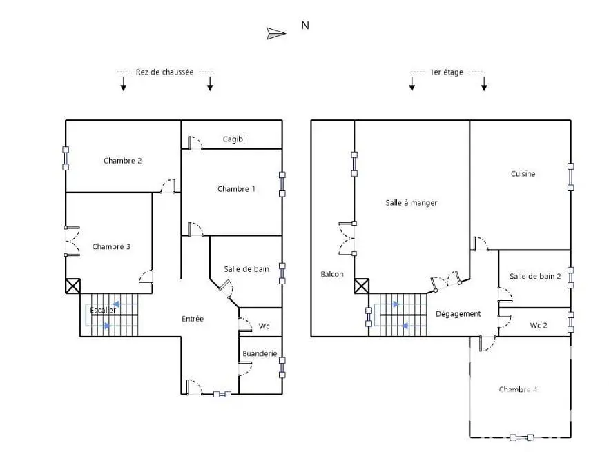
iad France - Sabine Dardente vous propose: Avenue Léon JOUHAUX - DOLESpacieux DUPLEX de 130m2 Comprenant - Au premier niveau : // Cuisine récente HYPE...
Afficher la description complète
Paramètres
Paramètres
Propriété:
Autres
PropriétéÉtat:
Autres
Efficacité énergétique:
D - Moins économe
Type de bâtiment:
Autres
Type de chauffage:
Autres
Afficher tous les paramètres
Âge de l'offre:
1 jours
Mis à jour:
1 jours
Signaler l'annonce
Localité
Dole
La localisation est approximative, l'adresse exacte est inconnue.
Demander l'adresse précise
Agrandir la carte
Aménagements publics
IAD France
Afficher téléphone
Contacter le vendeur
IAD France
Afficher téléphone
Contacter le vendeur
Offres similaires
|
Similaires à l'étranger
|
Vente
Appartements
France