Vente
Location
Blog
À propos de nous
+ Ajouter une propriété
Menu
Liste des offres
10
10
10
3 191 €
(53 € / m²)
Location
3
1
60 m²
Afficher sur la carte
Ajouter aux favoris
Partager
chambre à coucher
3
plat
60 m²
salles de bains
1
ascenseur
Non
parking
Non
état
Autre
sous-sol
Non
terrasse
Non
Description
Traduire en Anglais
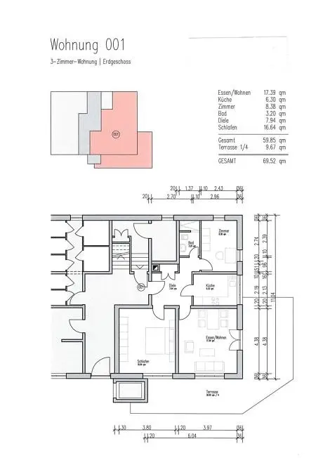
Zu vermieten per sofort oder nach Vereinbarung eine schöne 3,5 - Zimmer Gartenwohnung mit Wohnfläche 60 m2 und Wintergarten 15 m2 Die Wohnung erschei...
Afficher la description complète
Paramètres
Paramètres
Possession:
Autre
État:
Autre
type de bâtiment:
Autre
Type de chauffage:
Autre
Équipement:
Autre
Âge de l'offre:
95jours
Mis à jour:
53jours
Signaler une annonce
Localités
L'emplacement est approximatif, nous ne connaissons pas l'adresse exacte.
Demander l'adresse exacte
Agrandir la carte
Équipements municipaux
Hauseigentümerverband Zürich
Afficher le téléphone
Contacter le vendeur
Hauseigentümerverband Zürich
Afficher le téléphone
Contacter le vendeur
Annonces similaires
|
Pareil à l'étranger
|
Location
Appartements
Suisse