Vente
Location
Blog
À propos de nous
+ Ajouter une propriété
Menu
Liste des offres
10
10
10
460 €
(2 € / m²)
Location
1
1
190 m²
Afficher sur la carte
Ajouter aux favoris
Partager
chambre à coucher
1
plat
190 m²
salles de bains
1
ascenseur
Non
parking
Non
état
Autre
sous-sol
Non
terrasse
Non
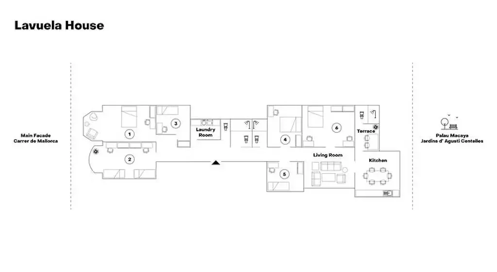
Description
Traduire en Anglais
For more details, please visit https://housinganywhere.com/room/ut1665589/es/Barcelona/carrer-de-mallorca?utm_medium=affiliate&utm_source=list_globall...
Afficher la description complète
Paramètres
Paramètres
Possession:
Autre
État:
Autre
type de bâtiment:
Autre
Type de chauffage:
Électrique
Équipement:
meublé
Âge de l'offre:
66jours
Mis à jour:
1jours
Signaler une annonce
Localités
L'emplacement est approximatif, nous ne connaissons pas l'adresse exacte.
Demander l'adresse exacte
Agrandir la carte
Équipements municipaux
HousingAnywhere
Afficher le téléphone
Contacter le vendeur
HousingAnywhere
Afficher le téléphone
Contacter le vendeur
Annonces similaires
|
Pareil à l'étranger
|
Location
Appartements
Espagne