Vente
Location
Blog
À propos
+ Ajouter une offre
Menu
Liste des offres
10
10
10
610 €
(3 € / m²)
Location
1
1
190 m²
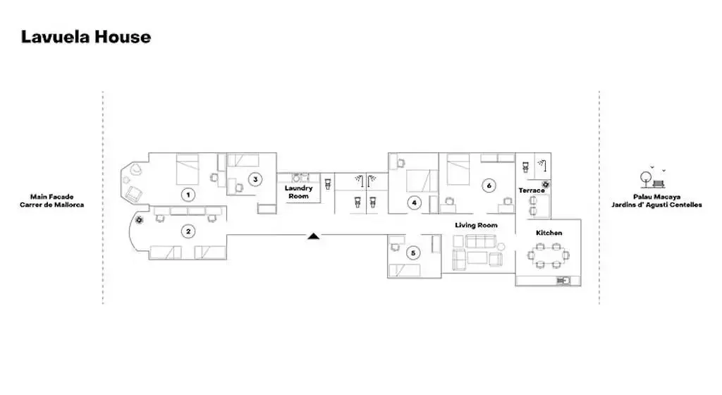
Carrer de Mallorca, Barcelona
Afficher sur la carte
Dans les favoris
Partager
chambre
1
surface
190 m²
salles de bains
1
ascenseur
Non
stationnement
Non
état
Autres
sous-sol
Non
terrasse
Non
Description
Traduire en anglais
For more details, please visit https://housinganywhere.com/room/ut1665566/es/Barcelona/carrer-de-mallorca?affiliate_partner_id=113009&utm_content=Barc...
Afficher la description complète
Paramètres
Paramètres
Propriété:
Autres
PropriétéÉtat:
Autres
Type de bâtiment:
Autres
Type de chauffage:
Électrique
Aménagement:
Équipé
Âge de l'offre:
20 jours
Mis à jour:
1 jours
Signaler l'annonce
Localité
Carrer de Mallorca, Barcelona
La localisation est approximative, l'adresse exacte est inconnue.
Demander l'adresse précise
Agrandir la carte
Aménagements publics
HousingAnywhere
Afficher téléphone
Contacter le vendeur
HousingAnywhere
Afficher téléphone
Contacter le vendeur
Offres similaires
|
Similaires à l'étranger
|
Location
Appartements
Espagne