Prodej
Pronájem
Blog
O nás
+ Přidat nemovitost
Menu
Výpis nabídek
7
7
7
2 298 091 €
(13 057 € / m²)
Prodej
6+
1
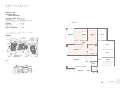
176 m²
Ruchholzstrasse, Bottmingen
Zobrazit na mapě
Do oblíbených
Sdílet
ložnice
6+
plocha
176 m²
koupelny
1
výtah
Ano
parkování
Ne
stav
Ostatní
suterén
Ne
terasa
Ne
Popis
Přeložit do angličtiny
DeutschWillkommen in Ihrer neuen Traumwohnung an der Ruchholzstrasse!Diese stilvolle 3.5-Zimmer-Wohnung kann mit dem ausgebauten Hobbyraum auch als 4....
Zobrazit celý popis
Parametry
Vybavení & vlastnosti
Výtah
Garáž
Parametry
Vlastnictví:
Ostatní
Stav:
Ostatní
Typ budovy:
Ostatní
Typ vytápění:
Ostatní
Vybavení:
Ostatní
Stáří nabídky:
2 dní
Aktualizováno:
2 dní
Nahlásit inzerát
Lokalita
Ruchholzstrasse, Bottmingen
Lokalita je orientační, neznáme přesnou adresu.
Požádat o přesnou adresu
Zvětšit mapu
Občanská vybavenost
Beurret & Partner Immobilien GmbH
Zobrazit telefon
Kontaktovat prodejce
Beurret & Partner Immobilien GmbH
Zobrazit telefon
Kontaktovat prodejce
Podobné inzeráty
|
Podobné v zahraničí
|
Vente
Appartements
Suisse