Vente
Location
Blog
À propos de nous
+ Ajouter une propriété
Menu
Liste des offres
2
2
383 000 €
(5 632 € / m²)
Vente
3
1
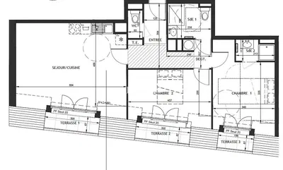
68 m²
Rue de Passe-Partout, Igny
Afficher sur la carte
Ajouter aux favoris
Partager
chambre à coucher
3
plat
68 m²
salles de bains
1
ascenseur
Non
parking
Non
état
Autre
sous-sol
Non
terrasse
Non
Description
Traduire en Anglais
F3 DE STANDING AU DERNIER ÉTAGE AVEC 3 BALCONS RÉSIDENCE 2026Au sommet d’une résidence neuve de très grand standing livrée en 2026, découvrez ce som...
Afficher la description complète
Paramètres
Paramètres
Possession:
Autre
État:
Autre
Intensité énergétique:
B - Très économique
type de bâtiment:
Autre
Type de chauffage:
pompe à chaleur
Afficher tous les paramètres
Âge de l'offre:
4jours
Mis à jour:
4jours
Signaler une annonce
Localités
Rue de Passe-Partout, Igny
L'emplacement est approximatif, nous ne connaissons pas l'adresse exacte.
Demander l'adresse exacte
Agrandir la carte
Équipements municipaux
Ami Igny
Afficher le téléphone
Contacter le vendeur
Ami Igny
Afficher le téléphone
Contacter le vendeur
Annonces similaires
|
Pareil à l'étranger
|
Vente
Appartements
France