Vente
Location
Blog
À propos
+ Ajouter un bien immobilier
Menu
Liste des offres
7
7
7
271 662 €
(3 159 € / m²)
Vente
filters.disposition_4
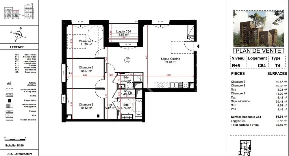
1
86 m²
ANGERS
Afficher sur la carte
Ajouter aux favoris
Partager
chambre
4
surface
86 m²
salle de bains
1
ascenseur
Oui
stationnement
Non
état
Autres
sous-sol
Non
terrasse
Non
Description
Traduire vers anglais
Le futur écoquartier de Belle-Beille est l'un des projets les plus ambitieux de la ville d'Angers. Implanté dans un cadre naturel remarquable, entre l...
Afficher la description complète
Paramètres
Équipement & caractéristiques
Ascenseur
Généré par IA
Wc séparé
Paramètres
Propriété:
Autres
état:
Autres
Type de bâtiment:
Autres
Type de chauffage:
Autres
Équipements:
Autres
Afficher tous les paramètres
Âge de l'offre:
6 jours
Mis à jour:
6 jours
Signaler l'annonce
Localité
ANGERS
L'emplacement est indicatif, nous ne connaissons pas l'adresse exacte.
Demander l'adresse exacte
Élargir la carte
Aménagements civiques
l'Adresse Anjou-Maine - l'Adresse Angers - Place du lycée
Afficher le téléphone
Contacter le vendeur
l'Adresse Anjou-Maine - l'Adresse Angers - Place du lycée
Afficher le téléphone
Contacter le vendeur
Annonces similaires
|
Offres similaires à l'étranger
|
Vente
Appartements
France