Prodej
Pronájem
Blog
O nás
+ Přidat nemovitost
Menu
Výpis nabídek
6
6
6
2 260 647 €
(7 246 € / m²)
Prodej
Atypické
2+
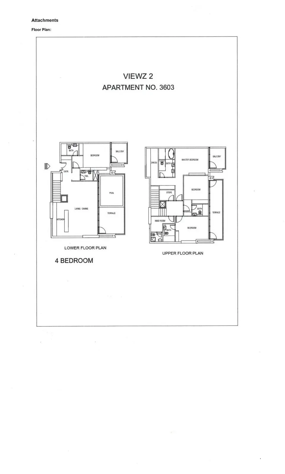
312 m²
شارع الميناء
Zobrazit na mapě
Do oblíbených
Sdílet
ložnice
atypical
plocha
312 m²
koupelny
2+
výtah
Ano
parkování
Ne
stav
Ostatní
suterén
Ne
terasa
Ne
Popis
Přeložit do angličtiny
Opportunity to own a new high-rise penthouse condominium in Dubai. Breez by Danube is a premium 60-floor waterfront residential tower in Dubai Maritim...
Zobrazit celý popis
Parametry
Vybavení & vlastnosti
Výtah
Internet
Klimatizace
Bazén
Parametry
Vlastnictví:
Ostatní
Stav:
Ostatní
Typ budovy:
Ostatní
Typ vytápění:
Ostatní
Vybavení:
Zařízený
Stáří nabídky:
2 dní
Aktualizováno:
2 dní
Nahlásit inzerát
Lokalita
شارع الميناء
Lokalita je orientační, neznáme přesnou adresu.
Požádat o přesnou adresu
Zvětšit mapu
Občanská vybavenost
BROOKS BALLARD
Zobrazit telefon
Kontaktovat prodejce
BROOKS BALLARD
Zobrazit telefon
Kontaktovat prodejce
Podobné inzeráty
|
Podobné v zahraničí
|
Vente
Appartements
Émirats arabes unis