Venta
Alquiler
Blog
Sobre nosotros
+ Añadir propiedad
Menú
Listado de ofertas
Arrendado
10
10
Arrendado
10
533 €
(8 € / m²)
Alquiler
2
1
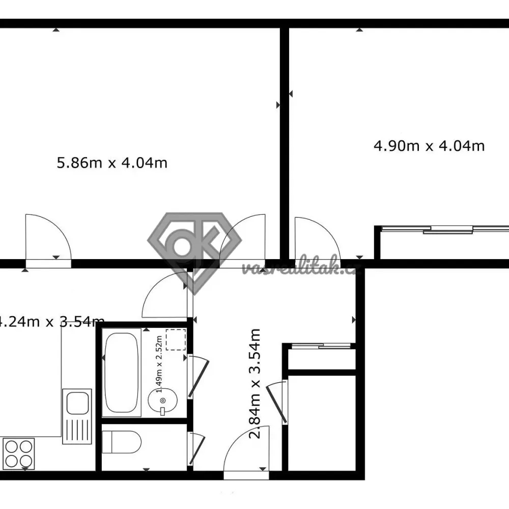
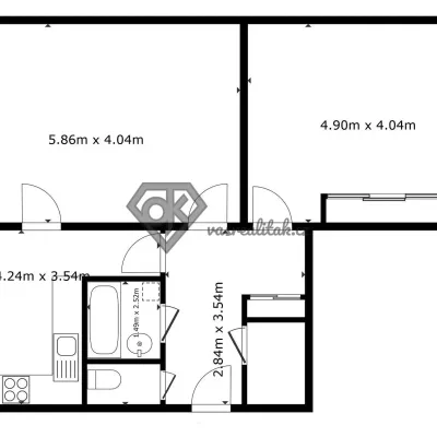
66 m²
Na Pláni 1347, Ústí nad Orlicí
Mostrar en el mapa
A favoritos
Compartir
dormitorio
0
área
66 m²
baños
1
ascensor
Sí
estacionamiento
No
estado
Otros
sótano
No
terraza
No
Descripción
Traducir a inglés
Hledáte pěkný byt k pronájmu v atraktivní lokalitě v Ústí nad Orlicí?Aktuálně nabízím zrekonstruovaný a částečně vybavený byt 2+1, o velikosti 66 m² n...
Mostrar descripción completa
Parámetros
Equipamiento & características
Ascensor
Parámetros
Propiedad:
Personal
Estado:
Otros
Consumo energético:
G - Extremadamente ineficiente
Tipo de edificio:
Panel
Tipo de calefacción:
Otros
Mostrar todos los parámetros
Antigüedad de la oferta:
49 días
Actualizado:
49 días
Reportar anuncio
Ubicación
Na Pláni 1347, Ústí nad Orlicí
La ubicación es aproximada, no conocemos la dirección exacta.
Solicitar dirección exacta
Expandir el mapa
Servicios cívicos
DR SPOLU s.r.o.
Ondřej Kolář
Mostrar Correo Electrónico
Mostrar teléfono
Contactar con el vendedor
DR SPOLU s.r.o.
Ondřej Kolář
Mostrar Correo Electrónico
Mostrar teléfono
Contactar con el vendedor
Ofertas similares
|
Similares en el extranjero
|
Rent
Apartments
Chequia
Pardubický kraj
Ústí nad Orlicí