Πώληση
Ενοικίαση
Ιστολόγιο
Σχετικά με εμάς
+ Προσθέστε προσφορά
Μενού
Κατάλογος προσφορών
243 000 €
(3 000 € / τ.μ.)
Πώληση
Άτυπα
1
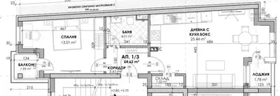
81 τ.μ.
Манастирски ливади/Manastirski livadi, София
Προβολή στο χάρτη
Στα αγαπημένα
Μοιραστείτε
υπνοδωμάτιο
atypical
περιοχή
81 τ.μ.
μπάνιο
1
ανελκυστήρας
Όχι
στάθμευση
Όχι
κατάσταση
Άλλα
υπόγειο
Όχι
βεράντα
Όχι
Περιγραφή
Μετάφραση σε Αγγλικά
Агенция 'Имотен Център' предлага на своите клиенти страхотен двустаен апартамент на границата на кв. Манастирски ливади и кв. Гоце Делчев (бул. Тодор ...
Προβολή πλήρους περιγραφής
Παράμετροι
Παράμετροι
Ιδιοκτησία:
Άλλα
Κατάσταση:
Άλλα
Τύπος κτιρίου:
Άλλα
Τύπος θέρμανσης:
Άλλα
Επιπλωμένο:
Άλλα
Ηλικία προσφοράς:
74 ημέρες
Ενημερώθηκε:
10 ημέρες
Αναφορά διαφήμισης
Τοποθεσία
Манастирски ливади/Manastirski livadi, София
Η τοποθεσία είναι ενδεικτική, δεν γνωρίζουμε την ακριβή διεύθυνση.
Ζητήστε ακριβή διεύθυνση
Μεγέθυνση χάρτη
Δημοτικές Παροχές
ИМОТЕН ЦЕНТЪР БЪЛГАРИЯ 2021
Εμφάνιση τηλεφώνου
Επικοινωνία με τον πωλητή
ИМОТЕН ЦЕНТЪР БЪЛГАРИЯ 2021
Εμφάνιση τηλεφώνου
Επικοινωνία με τον πωλητή
Παρόμοιες αγγελίες
|
Παρόμοια στο εξωτερικό
|
Πώληση
Διαμερίσματα
Βουλγαρία