Πώληση
Ενοικίαση
Ιστολόγιο
Σχετικά με εμάς
+ Προσθέστε προσφορά
Μενού
Κατάλογος προσφορών
Ενοικιασμένο
10
10
Ενοικιασμένο
10
530 €
(8 € / τ.μ.)
Ενοικίαση
2
1
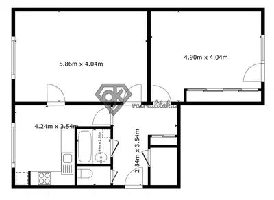
66 τ.μ.
Na Pláni 1347, Ústí nad Orlicí
Προβολή στο χάρτη
Στα αγαπημένα
Μοιραστείτε
υπνοδωμάτιο
2
περιοχή
66 τ.μ.
μπάνιο
1
ανελκυστήρας
Ναι
στάθμευση
Όχι
κατάσταση
Άλλα
υπόγειο
Όχι
βεράντα
Όχι
Περιγραφή
Μετάφραση σε Αγγλικά
Hledáte pěkný byt k pronájmu v atraktivní lokalitě v Ústí nad Orlicí?Aktuálně nabízím zrekonstruovaný a částečně vybavený byt 2+1, o velikosti 66 m² n...
Προβολή πλήρους περιγραφής
Παράμετροι
Εξοπλισμός & χαρακτηριστικά
Ανελκυστήρας
Παράμετροι
Ιδιοκτησία:
Προσωπικός
Κατάσταση:
Άλλα
Ενεργειακή απόδοση:
G - Εξαιρετικά μη οικονομικό
Τύπος κτιρίου:
Πάνελ
Τύπος θέρμανσης:
Άλλα
Εμφάνιση όλων των παραμέτρων
Ηλικία προσφοράς:
61 ημέρες
Ενημερώθηκε:
61 ημέρες
Αναφορά διαφήμισης
Τοποθεσία
Na Pláni 1347, Ústí nad Orlicí
Η τοποθεσία είναι ενδεικτική, δεν γνωρίζουμε την ακριβή διεύθυνση.
Ζητήστε ακριβή διεύθυνση
Μεγέθυνση χάρτη
Δημοτικές Παροχές
DR SPOLU s.r.o.
Ondřej Kolář
Προβολή E-mail
Εμφάνιση τηλεφώνου
Επικοινωνία με τον πωλητή
DR SPOLU s.r.o.
Ondřej Kolář
Προβολή E-mail
Εμφάνιση τηλεφώνου
Επικοινωνία με τον πωλητή
Παρόμοιες αγγελίες
|
Παρόμοια στο εξωτερικό
|
Ενοικίαση
Διαμερίσματα
Τσεχία
Pardubický kraj
Ústí nad Orlicí