Πώληση
Ενοικίαση
Ιστολόγιο
Σχετικά με εμάς
+ Προσθέστε προσφορά
Μενού
Κατάλογος προσφορών
10
10
10
5 045 €
(38 € / τ.μ.)
Ενοικίαση
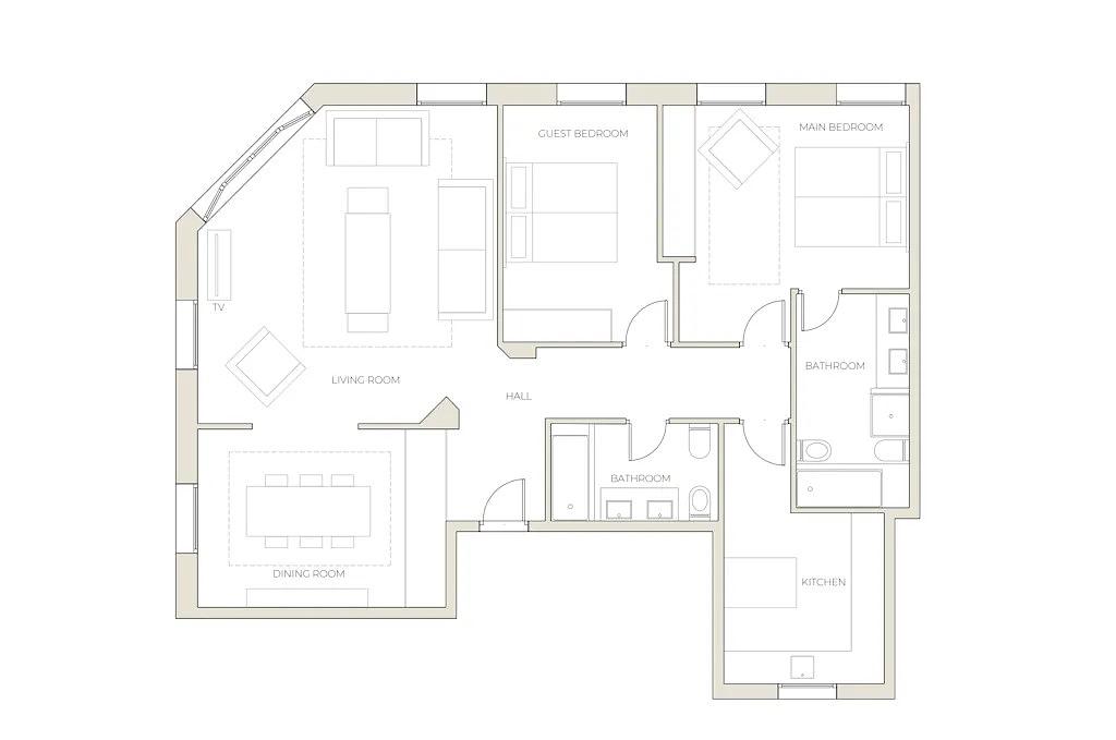
2
1
134 τ.μ.
Calle de Diego de León, Madrid
Προβολή στο χάρτη
Στα αγαπημένα
Μοιραστείτε
υπνοδωμάτιο
2
περιοχή
134 τ.μ.
μπάνιο
1
ανελκυστήρας
Όχι
στάθμευση
Όχι
κατάσταση
Άλλα
υπόγειο
Όχι
βεράντα
Όχι
Περιγραφή
Μετάφραση σε Αγγλικά
For more details, please visit https://housinganywhere.com/room/ut1535553/es/Madrid/calle-de-diego-de-le-n?utm_medium=affiliate&utm_source=list_global...
Προβολή πλήρους περιγραφής
Παράμετροι
Εξοπλισμός & χαρακτηριστικά
Κλιματισμός
Παράμετροι
Ιδιοκτησία:
Άλλα
Κατάσταση:
Άλλα
Τύπος κτιρίου:
Άλλα
Τύπος θέρμανσης:
Άλλα
Επιπλωμένο:
Επιπλωμένο
Ηλικία προσφοράς:
364 ημέρες
Ενημερώθηκε:
364 ημέρες
Αναφορά διαφήμισης
Τοποθεσία
Calle de Diego de León, Madrid
Η τοποθεσία είναι ενδεικτική, δεν γνωρίζουμε την ακριβή διεύθυνση.
Ζητήστε ακριβή διεύθυνση
Μεγέθυνση χάρτη
Δημοτικές Παροχές
Housing Anywhere
Εμφάνιση τηλεφώνου
Επικοινωνία με τον πωλητή
Housing Anywhere
Εμφάνιση τηλεφώνου
Επικοινωνία με τον πωλητή
Παρόμοιες αγγελίες
|
Παρόμοια στο εξωτερικό
|
Ενοικίαση
Διαμερίσματα
Ισπανία