Prodej
Pronájem
Blog
O nás
+ Přidat nemovitost
Menu
Výpis nabídek
Prodáno
20
20
Prodáno
20
138 610 €
(3 554 € / m²)
Prodej
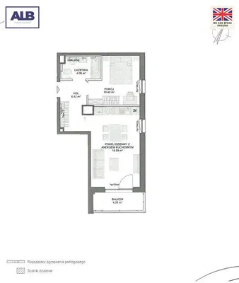
2
1
39 m²
Zobrazit na mapě
Do oblíbených
Sdílet
ložnice
2
plocha
39 m²
koupelny
1
výtah
Ne
parkování
Ne
stav
suterén
Ne
terasa
Ne
Popis
Přeložit do angličtiny
Mam do zaoferowania CESJĘ słonecznego, nowoczesnego apartamentu zlokalizowanego w wyjątkowej inwestycji zlokalizowanej na Gdańskiej Morenie, w miejscu...
Zobrazit celý popis
Parametry
Parametry
Vlastnictví:
Ostatní
Typ vytápění:
Ostatní
Vybavení:
Ostatní
Stáří nabídky:
90 dní
Aktualizováno:
47 dní
Nahlásit inzerát
Lokalita
Lokalita je orientační, neznáme přesnou adresu.
Požádat o přesnou adresu
Zvětšit mapu
Občanská vybavenost
ALB ALEKSANDER ŁYCZKOWSKI
Aleksander Łyczkowski
Zobrazit E-mail
Zobrazit telefon
Kontaktovat prodejce
ALB ALEKSANDER ŁYCZKOWSKI
Aleksander Łyczkowski
Zobrazit E-mail
Zobrazit telefon
Kontaktovat prodejce
Podobné inzeráty
|
Podobné v zahraničí
|
Πώληση
Διαμερίσματα
Πολωνία