Πώληση
Ενοικίαση
Ιστολόγιο
Σχετικά με εμάς
+ Προσθήκη προσφοράς
Μενού
Λίστα προσφορών
12
12
12
750 000 €
(13 636 € / τ.μ.)
Πώληση
2
1
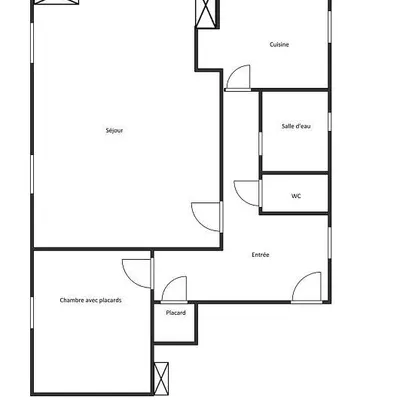
55 τ.μ.
Paris 4ème
Εμφάνιση στον χάρτη
Στα αγαπημένα
Μοιράζομαι
υπνοδωμάτιο
1
επιφάνεια
55 τ.μ.
μπάνιο
1
ασανσέρ
Όχι
στάθμευση
Όχι
κατάσταση
Άλλες
υπόγειο
Όχι
βεράντα
Όχι
Περιγραφή
Μετάφραση σε Αγγλικά
SAINT-PAUL/HOTEL DE VILLE. En plein coeur du Marais, au 5ème étage sans ascenseur d'un immeuble de standing nous vous proposons ce magnifique appartem...
Εμφάνιση πλήρους περιγραφής
Παράμετροι
Παράμετροι
Ιδιοκτησία:
Άλλες
Κατάσταση:
Άλλες
Ενεργειακή απόδοση:
E - Μη οικονομικό
Είδος κτιρίου:
Άλλοι
Τύπος θέρμανσης:
Φυσικό αέριο
Εμφάνιση όλων των παραμέτρων
Ηλικία προσφοράς:
327 ημέρες
Ενημερώθηκε:
327 ημέρες
Αναφορά διαφήμισης
Τοποθεσία
Paris 4ème
Η τοποθεσία είναι ενδεικτική, δεν γνωρίζουμε την ακριβή διεύθυνση.
Αίτηση για ακριβή διεύθυνση
Μεγέθυνση χάρτη
Αστική υποδομή
Vaneau Luxembourg
Προβολή τηλεφώνου
Επικοινωνία με τον πωλητή
Vaneau Luxembourg
Προβολή τηλεφώνου
Επικοινωνία με τον πωλητή
Παρόμοιες αγγελίες
|
Παρόμοια στο εξωτερικό
|
Sale
Apartments