Verkauf
Mieten
Blog
Über uns
+ Eigenschaft hinzufügen
Speisekarte
Angebotsliste
20
20
20
1 186 €
(14 € / m²)
Mieten
3
1
83 m²
Zárubova
Auf Karte anzeigen
Zu Favoriten hinzufügen
Aktie
schlafzimmer
3
wohnung
83 m²
badezimmer
1
aufzug
NEIN
parken
NEIN
zustand
Originalzustand
keller
NEIN
terrasse
NEIN
Beschreibung
Übersetzen nach Englisch
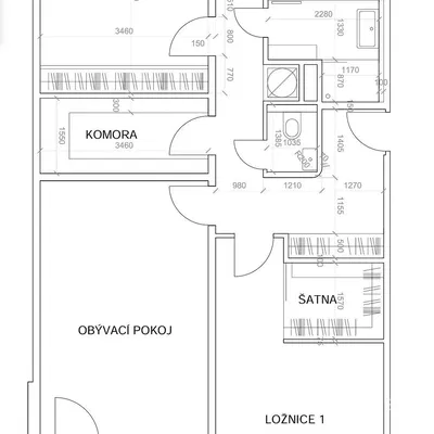
Evidenční číslo / ID zakázky: D2008
Nabízíme k dlouhodobému pronájmu světlý, kompletně a kvalitně zrekonstruovaný byt 3+1 o celkové ploše 83 m², si...
Vollständige Beschreibung anzeigen
Parameter
Parameter
Eigentum:
Persönlich
Zustand:
Originalzustand
Energieintensität:
C – Wirtschaftlich
Gebäudetyp:
Panel
Heizungsart:
Andere
Alle Parameter anzeigen
Alter des Angebots:
7Tage
Aktualisiert:
7Tage
Anzeige melden
Ortschaften
Zárubova
Die Standortangabe ist nur ungefähr, wir kennen die genaue Adresse nicht.
Bitte genaue Adresse anfordern
Karte vergrößern
Öffentliche Einrichtungen
REALMAN REALMAN
Makers Reality - Makers Reality
E-Mail anzeigen
Telefonnummer anzeigen
Verkäufer kontaktieren
REALMAN REALMAN
Makers Reality - Makers Reality
E-Mail anzeigen
Telefonnummer anzeigen
Verkäufer kontaktieren
Ähnliche Anzeigen
Ähnliches im Ausland
Miete
Wohnungen
Tschechien
Hauptstadt Prag
Kameik
Praha 412