Verkauf
Locatioun
Blog
Iwwer eis
+ Annonce hinzufügen
Menü
Angebotsauflistung
9
9
9
7 495 €
(37 € / m²)
Locatioun
filters.disposition_4
1
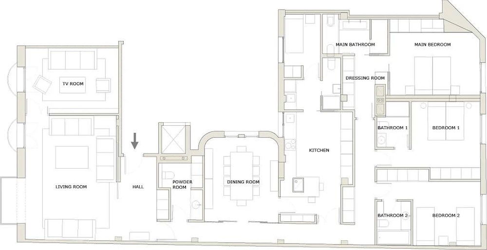
200 m²
Calle de Zurbarán, Madrid
Auf Karte anzeigen
Zu Favoriten
Teilen
schlofkummer
4
fläche
200 m²
badezimmer
1
lift
Nein
parken
Nein
zustand
Sonstiges
keller
Nein
terrass
Nein
Beschreibung
Übersetzen zu Englisch
For more details, please visit https://housinganywhere.com/room/ut1535569/es/Madrid/calle-de-zurbar-n?utm_source=list_globally&affiliate_partner_id=11...
Vollständige Beschreibung anzeigen
Parameter
Ausstattung & Eigenschaften
Klimaanlage
Parameter
Eigentum:
Sonstiges
Zoustänn:
Sonstiges
Gebäudeart:
Sonstiges
Heizungsart:
Sonstiges
Möbliert:
Ausgestattet
Alter des Angebots:
364 Tage
Aktualiséiert:
364 Tage
Anzeige melden
Standort
Calle de Zurbarán, Madrid
Standort ist ungefähr, genaue Adresse unbekannt.
Genaue Adresse anfordern
Karte vergrößern
Bürgerliche Ausstattung
Housing Anywhere
Telefon anzeigen
Verkäufer kontaktieren
Housing Anywhere
Telefon anzeigen
Verkäufer kontaktieren
Änlech Annoncen
|
Ähnliches im Ausland
|
Miete
Wohnungen
Spanien