Verkauf
Locatioun
Blog
Iwwer eis
+ Annonce hinzufügen
Menü
Angebotsauflistung
6
6
6
72 098 €
(1 949 € / m²)
Verkauf
3
1
37 m²
Železná Ruda
Auf Karte anzeigen
Zu Favoriten
Teilen
schlofkummer
3
fläche
37 m²
badezimmer
1
lift
Nein
parken
Nein
zustand
Ursprungszustand
keller
Nein
terrass
Nein
Beschreibung
Übersetzen zu Englisch
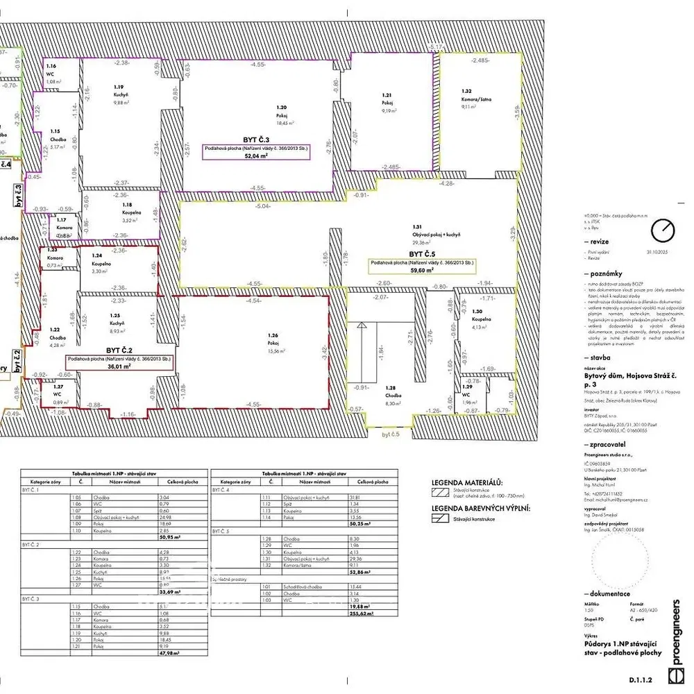
Prodej bytu k rekonstrukci – 3 KK - Hojsova Stráž, Šumava
Tento bytu č. 3 v původním stavu představuje ideální řešení pro všechny, kteří hledají trva...
Vollständige Beschreibung anzeigen
Parameter
Generiert aus KI
Separates wc
Badewanne
Renovierung erforderlich
Parameter
Eigentum:
Perséinlech
Zoustänn:
Ursprungszustand
Energieeffizienz:
G - Extrem verschwenderisch
Gebäudeart:
Zéck
Heizungsart:
Sonstiges
Alle Parameter anzeigen
Alter des Angebots:
7 Tage
Aktualiséiert:
7 Tage
Anzeige melden
Standort
Železná Ruda
Standort ist ungefähr, genaue Adresse unbekannt.
Genaue Adresse anfordern
Karte vergrößern
Bürgerliche Ausstattung
REALMAN REALMAN
Simona Fink - BYTY Západ, s.r.o.
E-Mail anzeigen
Telefon anzeigen
Verkäufer kontaktieren
REALMAN REALMAN
Simona Fink - BYTY Západ, s.r.o.
E-Mail anzeigen
Telefon anzeigen
Verkäufer kontaktieren
Änlech Annoncen
|
Ähnliches im Ausland
|
Verkauf
Wohnungen
Tschechien
Markt Eisenstein