Verkauf
Locatioun
Blog
Iwwer eis
+ Annonce hinzufügen
Menü
Angebotsauflistung
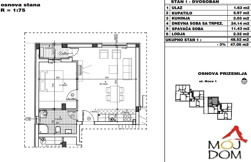
95 600 €
(2 034 € / m²)
Verkauf
2
1
47 m²
PETROVARADIN, PETROVARADIN
Auf Karte anzeigen
Zu Favoriten
Teilen
schlofkummer
0
fläche
47 m²
badezimmer
1
lift
Nein
parken
Nein
zustand
Sonstiges
keller
Nein
terrass
Nein
Beschreibung
Übersetzen zu Englisch
Petrovaradin! Vaš mali raj čeka samo na Vas!
Ušuškan, komforan stan, skladnog rasporeda u zgradi koju gradi pouzdan investitor nalaze se u mirnom kraj...
Vollständige Beschreibung anzeigen
Parameter
Parameter
Eigentum:
Sonstiges
Zoustänn:
Sonstiges
Gebäudeart:
Sonstiges
Heizungsart:
Gasheizung
Möbliert:
Sonstiges
Alter des Angebots:
288 Tage
Aktualiséiert:
287 Tage
Anzeige melden
Standort
PETROVARADIN, PETROVARADIN
Standort ist ungefähr, genaue Adresse unbekannt.
Genaue Adresse anfordern
Karte vergrößern
Bürgerliche Ausstattung
MOJ DOM - AGENCIJA ZA NEKRETNINE
Dragana Zorić
E-Mail anzeigen
Telefon anzeigen
Verkäufer kontaktieren
MOJ DOM - AGENCIJA ZA NEKRETNINE
Dragana Zorić
E-Mail anzeigen
Telefon anzeigen
Verkäufer kontaktieren
Änlech Annoncen
|
Ähnliches im Ausland
|
Sale
Apartments
Serbien